Vuokrataan toimistotilat, tuotantotilat, varastotilat - Helsinki
Hankasuontie 9, Konala, 00390 Helsinki #10825182
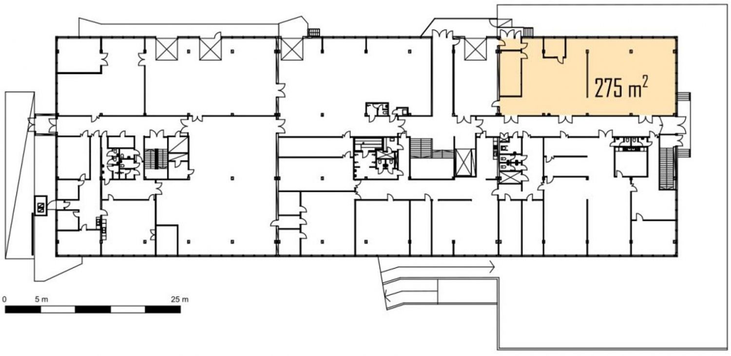
Vuokrataan Helsingin Konalasta ensimmäisen kerroksen 275 m² varastotila toimistolla. Soveltuu myös tuotantotilaksi.
Väliseinä jakaa tilan noin puoliksi toimistolle ja varastolle. Kulkuyhteys ulkoa suoraan omasta ovesta tai lastauslaiturilta käytävän kautta. Varastopuolelle myös oma ovi käytävästä. Toimistossa keittiönurkka, wc:t käytävällä.
Kysy rohkeasti lisätietoja ja sovitaan käynti kohteella jo tänään!
Osoite
Hankasuontie 9, 00390 Helsinki
Tilatyyppi
Toimistotilaa
275 m2
Tuotantotilaa
275 m2
Varastotilaa
275 m2
Yhteensä
275 m2
Kiinteistö
Hankasuontie 9
Vapautuu
Kysy
Ota yhteyttä
Hausala Oy
Erkkilänkatu 11, 33100 Tampere
Näytä puhelinnumero
050 472 7077
Mikko Ranta
Näytä puhelinnumero
050 360 6500
Mika Savikko
Näytä puhelinnumero
050 472 7077
Pyydä lisätietoa
