Vuokrataan toimistotilat, tuotantotilat, varastotilat - Helsinki
Hankasuontie 9, Konala, 00390 Helsinki #10825181
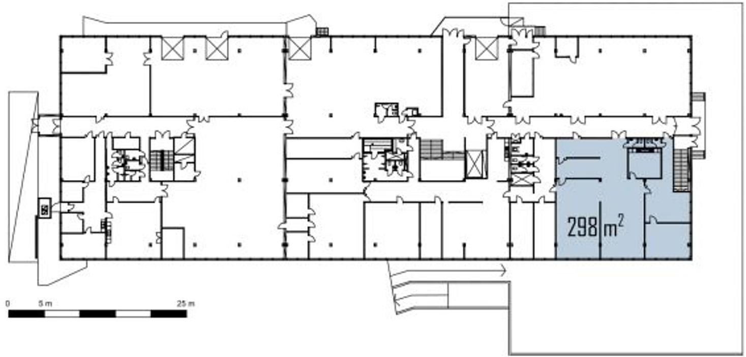
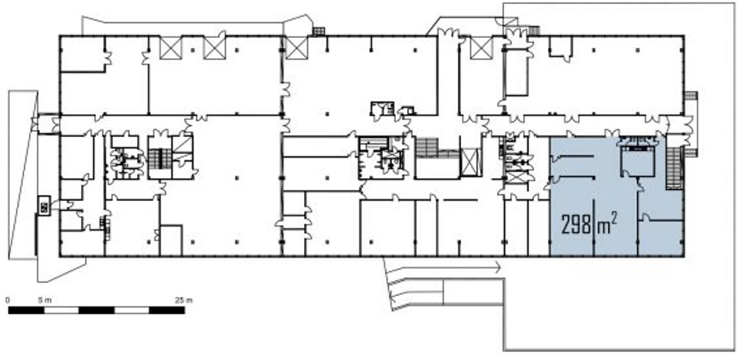
Vuokrataan Helsingin Konalasta ensimmäisen kerroksen 298 m² varastotila toimistolla. Soveltuu myös tuotantotilaksi.
Tilassa on keittiö ja wc:t. Toimiston osuus on noin 152 m² ja varaston 146 m². Lastauslaituri käytössä. Väliseiniä on mahdollista poistaa ja näin avata tiloja. Rauhallinen sisäänkäynti pihan puolelta, jossa parkkipaikkoja.
Kysy rohkeasti lisätietoja ja sovitaan käynti kohteella jo tänään!
Osoite
Hankasuontie 9, 00390 Helsinki
Tilatyyppi
Toimistotilaa
298 m2
Tuotantotilaa
298 m2
Varastotilaa
298 m2
Yhteensä
298 m2
Kiinteistö
Hankasuontie 9
Vapautuu
Kysy
Ota yhteyttä
Hausala Oy
Erkkilänkatu 11, 33100 Tampere
Näytä puhelinnumero
050 472 7077
Mikko Ranta
Näytä puhelinnumero
050 360 6500
Mika Savikko
Näytä puhelinnumero
050 472 7077
Pyydä lisätietoa
