Vuokrataan varastotilat - Helsinki
Hankasuontie 9, Konala, 00390 Helsinki #10825166
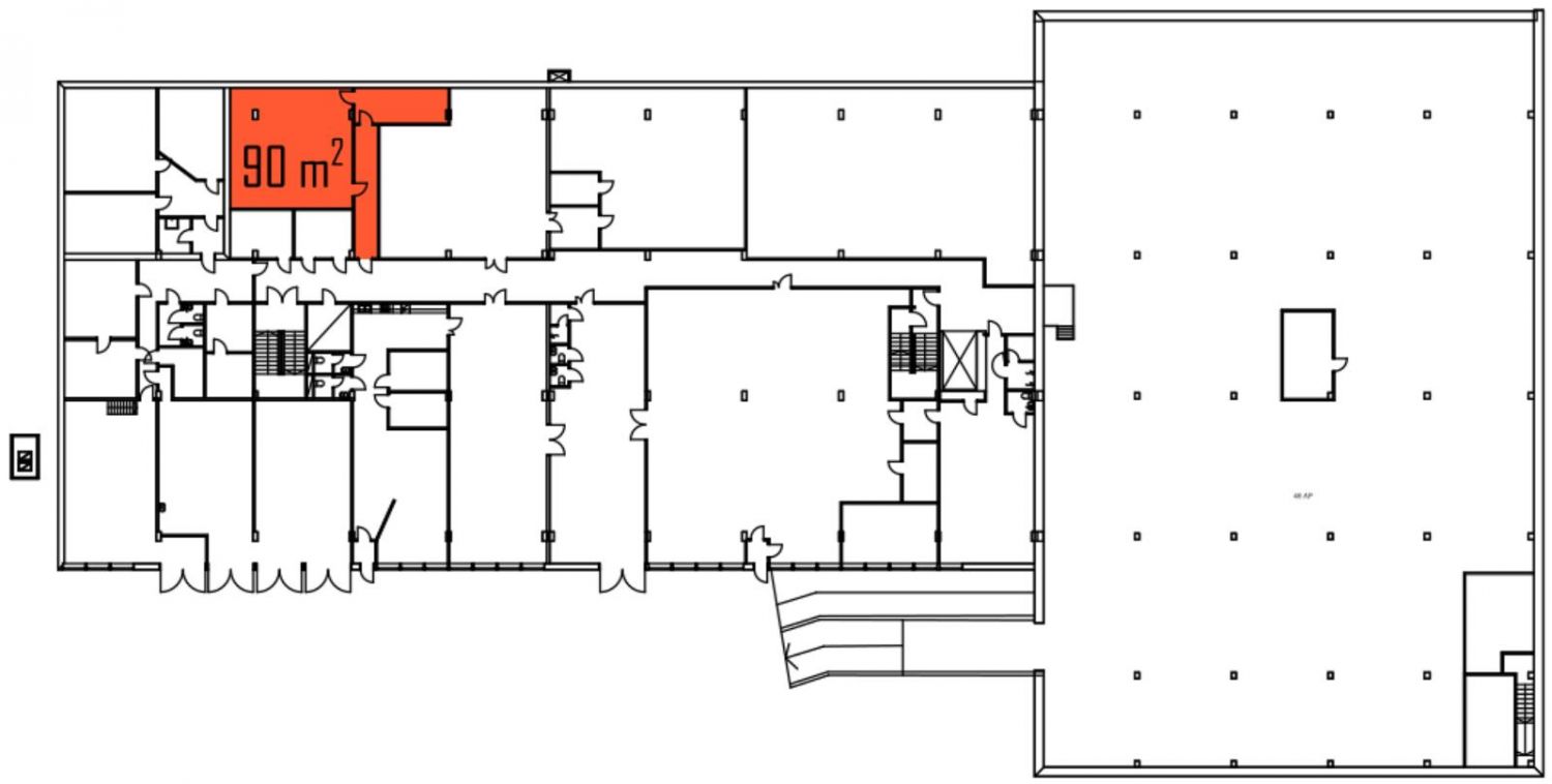
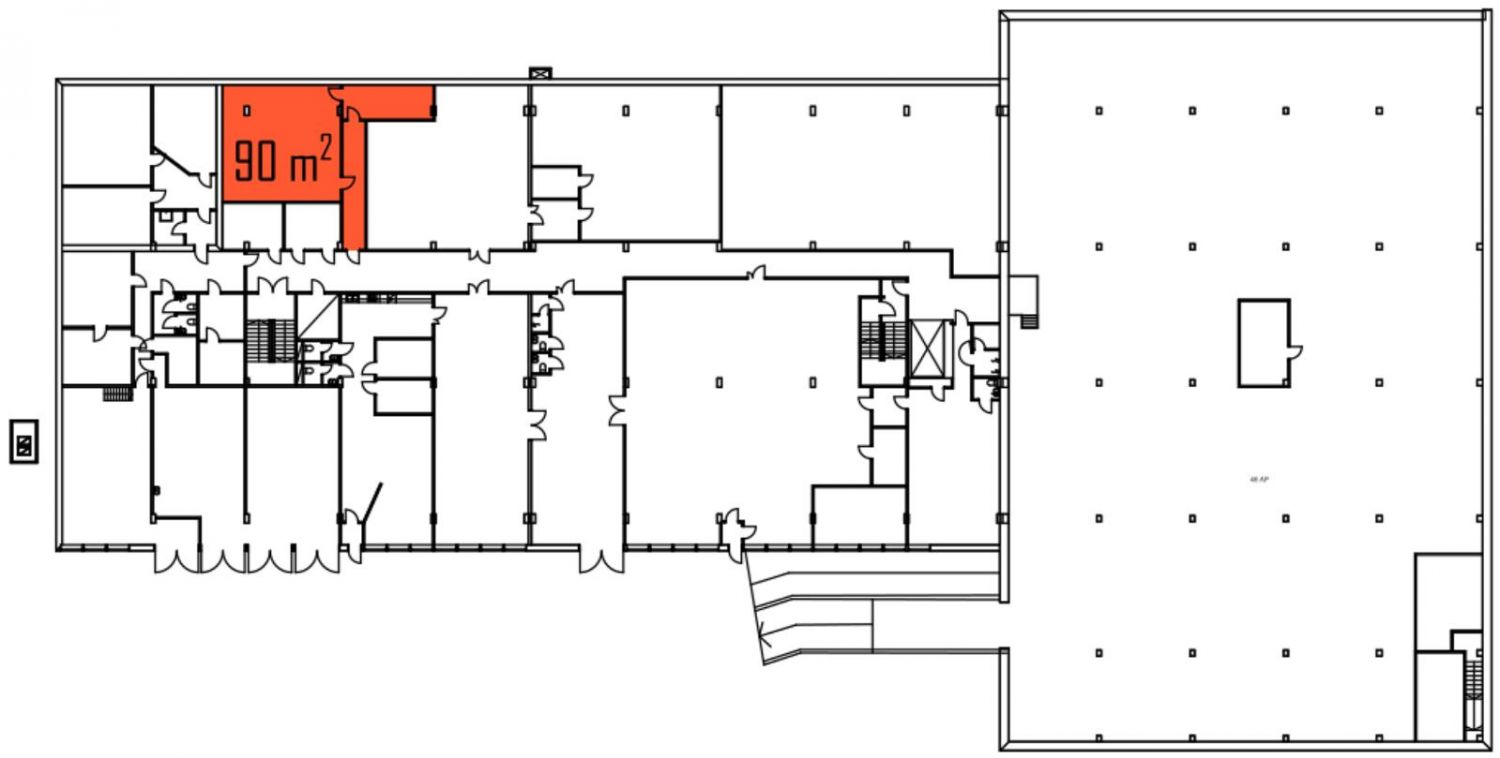
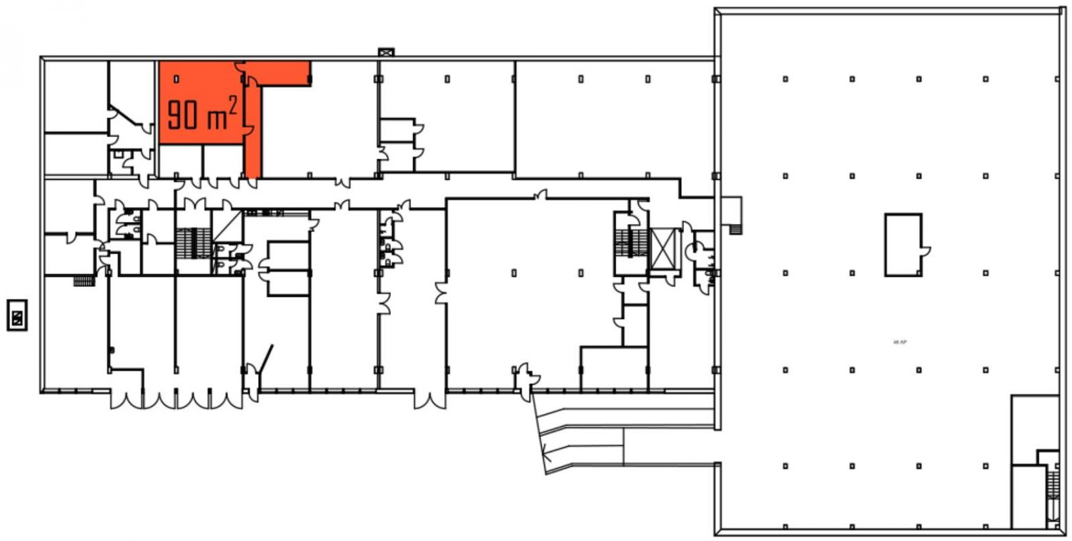
Vuokrataan Helsingin Konalasta kellari kerroksen 90 m² varastotila. Tila ei sovellu bänditilaksi.
Kysy rohkeasti lisätietoja ja sovitaan käynti kohteella!
Osoite
Hankasuontie 9, 00390 Helsinki
Tilatyyppi
Varastotilaa
90 m2
Kiinteistö
Hankasuontie 9
Palvelut
Lastauslaituri ja tavarahissi.
Vapautuu
Kysy
Ota yhteyttä
Hausala Oy
Erkkilänkatu 11, 33100 Tampere
Näytä puhelinnumero
050 472 7077
Mikko Ranta
Näytä puhelinnumero
050 360 6500
Mika Savikko
Näytä puhelinnumero
050 472 7077
Pyydä lisätietoa
