Vuokrataan toimistotilat - Järvenpää
Minkkikatu 1-3, Mikonkorpi, 04430 Järvenpää #10825165
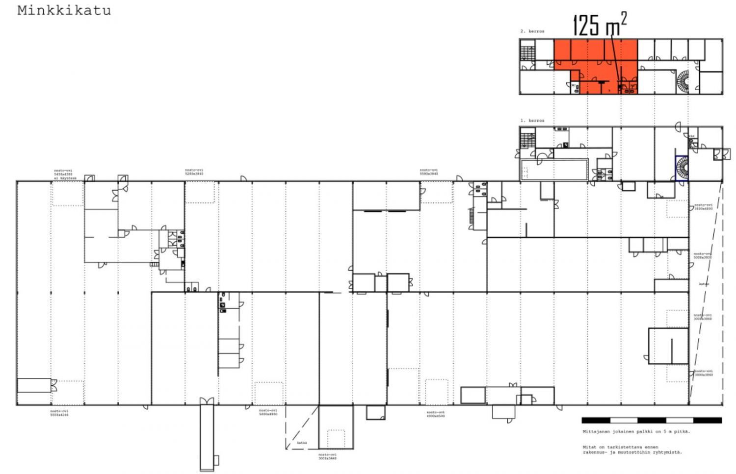
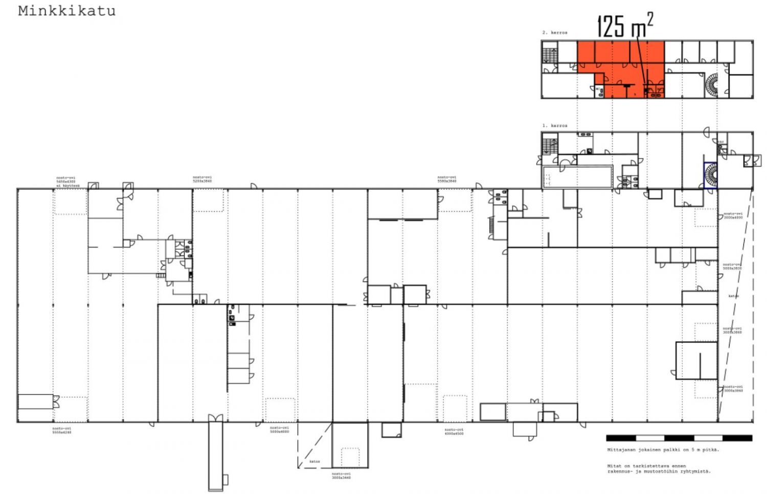
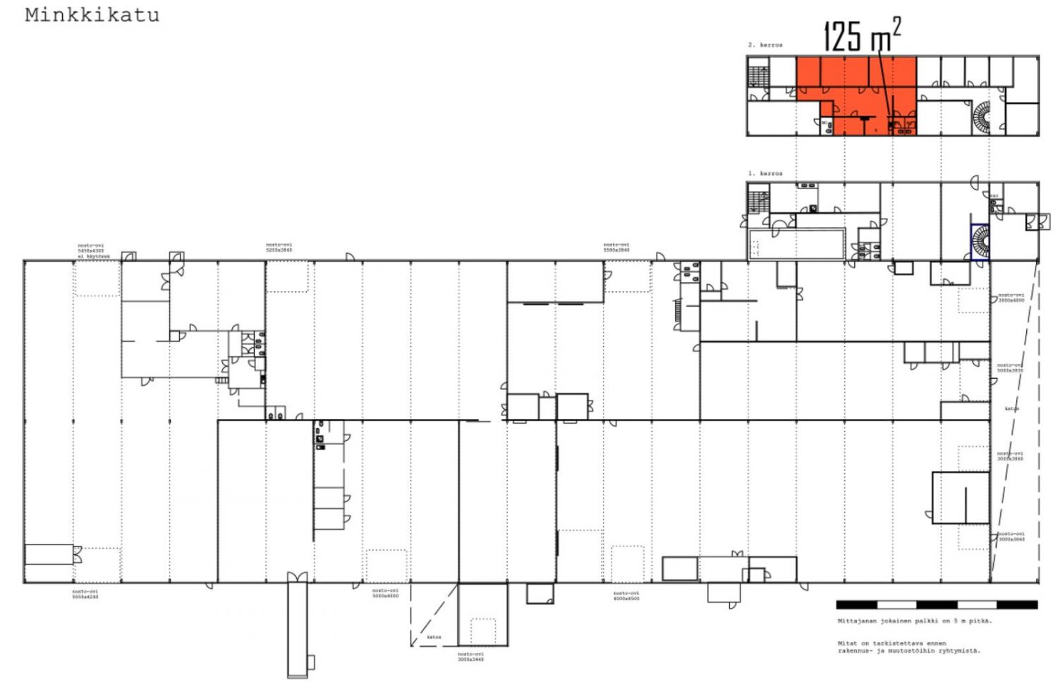
Vuokrataan Järvenpään Mikonkorvesta toisen kerroksen 125 m² toimistotila.
Tiloissa on koneellinen ilmanvaihto ja jäähdytys. Piha-alueella on hyvät pysäköintitilat.
Kysy rohkeasti lisätietoja ja sovitaan käynti kohteella!
Osoite
Minkkikatu 1-3, 04430 Järvenpää
Tilatyyppi
Toimistotilaa
125 m2
Vuokra
1000 €/kk
Kiinteistö
Minkkikatu 1-3
Palvelut
Asiakaspysäköinti
Vapautuu
Kysy
Kerros
2
Ota yhteyttä
Hausala Oy
Erkkilänkatu 11, 33100 Tampere
Näytä puhelinnumero
050 472 7077
Matti Pöyhiä
Näytä puhelinnumero
040 722 6650
Mika Savikko
Näytä puhelinnumero
050 472 7077
Pyydä lisätietoa
