Vuokrataan toimistotilat - Helsinki
Mikonkatu 19, Kluuvi, 00100 Helsinki #10825073
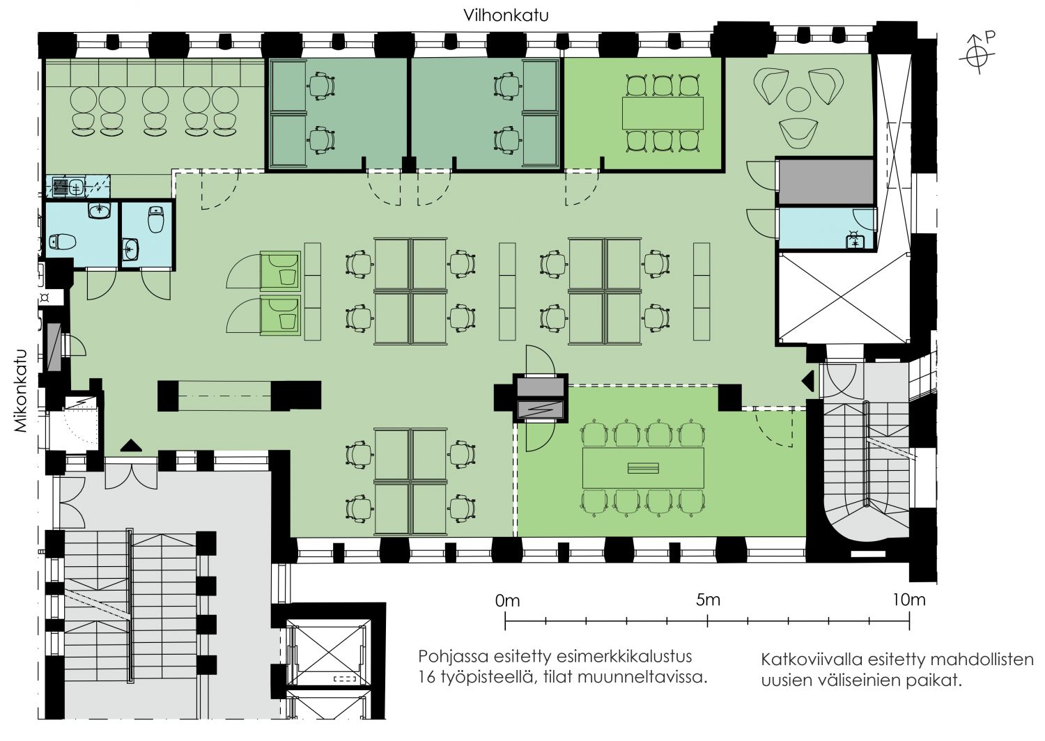
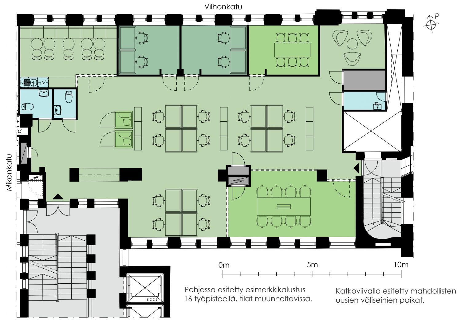
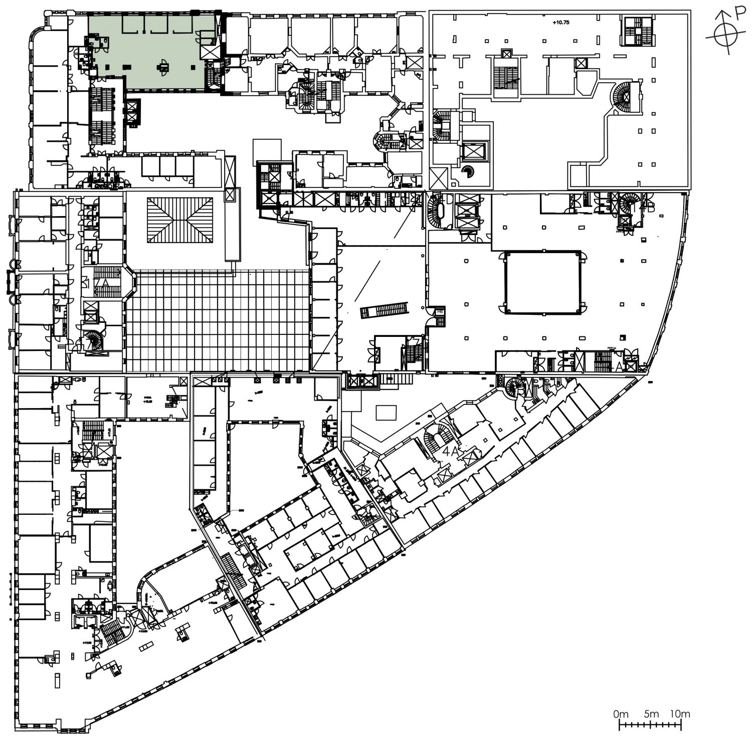
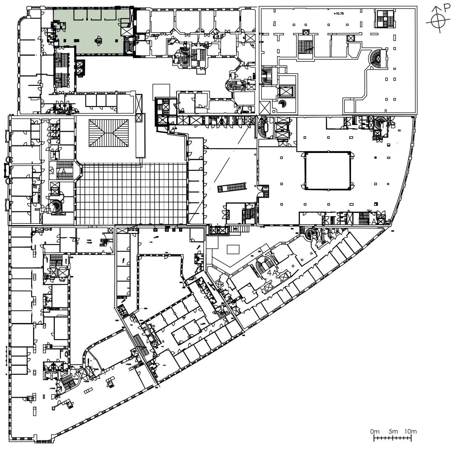
Korkea tila, johon toteutetaan tilaratkaisut toiveiden mukaan. Näkymät Vilhonkadulle.
Osoite
Mikonkatu 19, 00100 Helsinki
Tilatyyppi
Toimistotilaa
210 m2
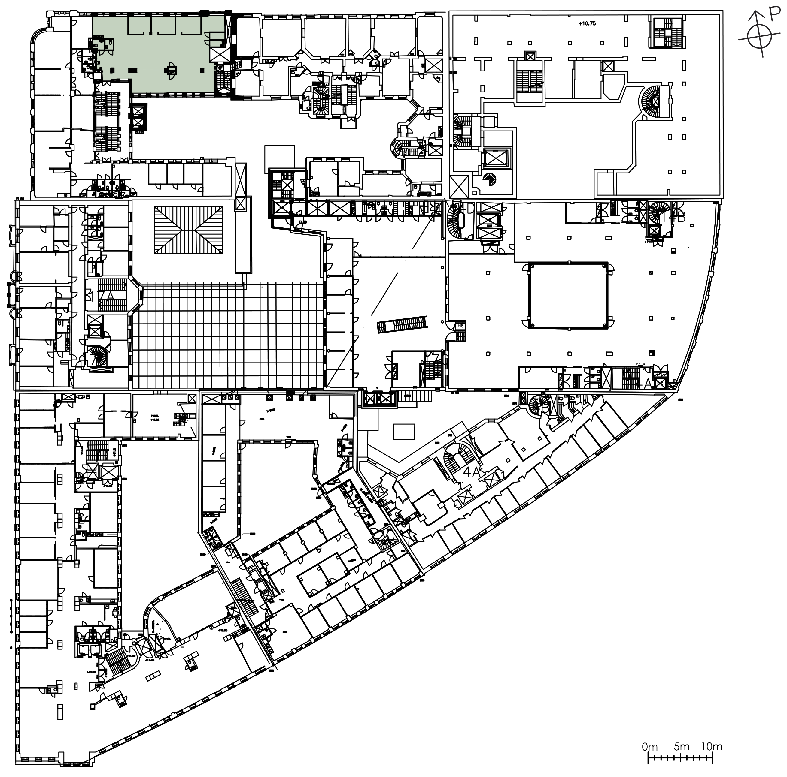
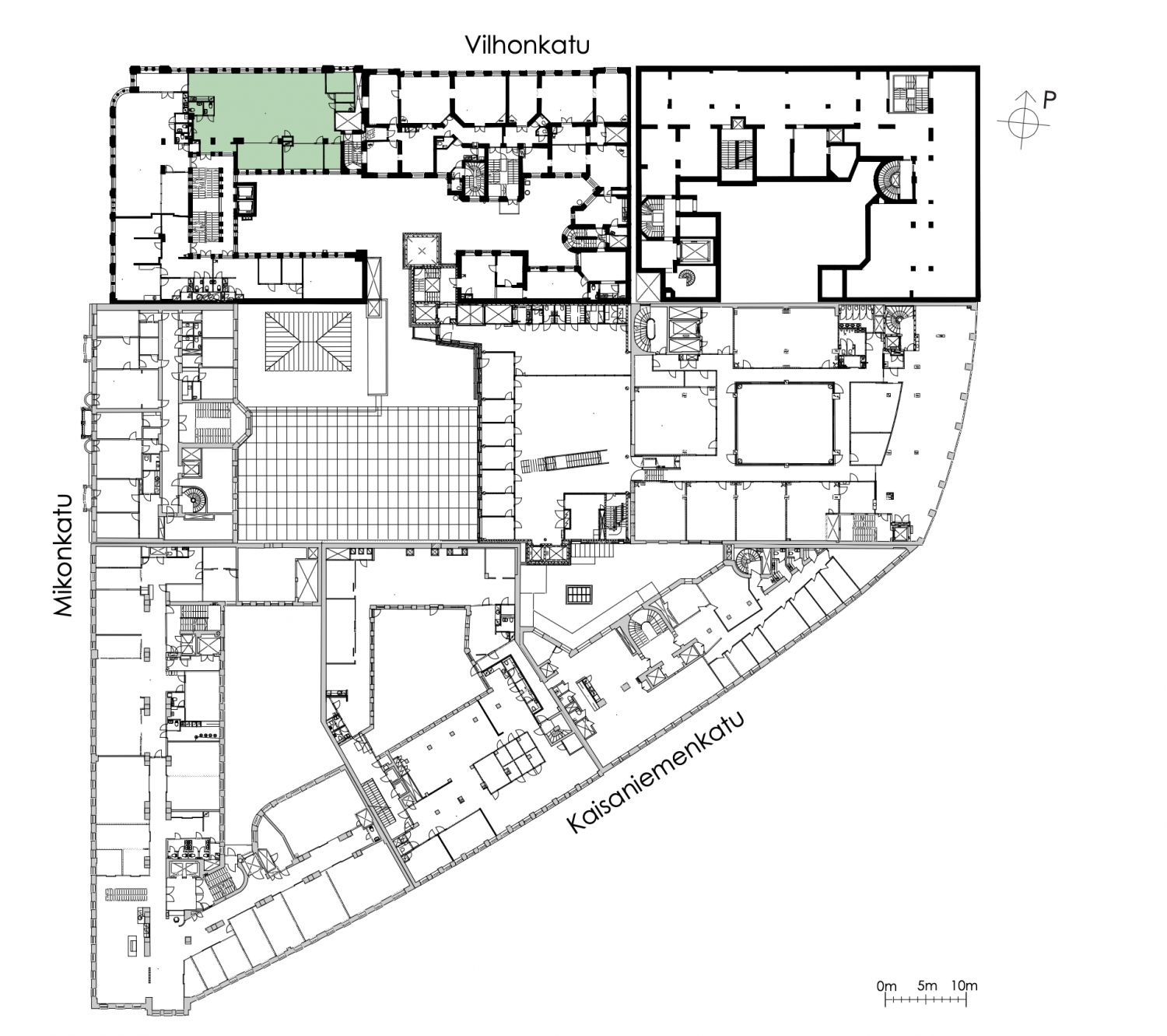
Pohjapiirros
Kiinteistö
Historiaa henkivä toimisto- ja liikekiinteistö Fennia-korttelissa. Täysin kunnostetut tilat luovat upeat puitteet erilaisille yrityksille.
Mikonkatu 19:n historia ulottuu vuoteen 1912, jolloin Konekauppa Aatra rakennutti paikalle viisikerroksisen, myöhäisjugendia edustavan liikerakennuksen arkkitehtitoimisto Palmqvist & Sjöströmin suunnitelmien mukaan. Rakennus siirtyi sittemmin Autoliike Nikolajeffin omistukseen, jolta se sai nimensä, ja se on suojeltu, rakennustaiteellisesti ja kulttuurihistoriallisesti arvokas osa Fennia-korttelia.
Historiallisen arvonsa ja keskeisen sijaintinsa ansiosta Mikonkatu 19 on ainutlaatuinen toimisto- ja liikekiinteistö Helsingin ydinkeskustassa, aivan Rautatientorin äärellä, josta on erinomaiset julkisen liikenteen yhteydet ympäri pääkaupunkiseutua.
Kiinteistö koostuu kahdesta rakennuksesta, joista toiseen on kulku Mikonkadulta ja toiseen Vilhonkadulta. Rakennukset ovat osittain yhteydessä toisiinsa. Katutasossa on liiketiloja ja ylemmissä kerroksissa on toimistotilaa.
Kiinteistön historiaa henkivät, moderniin toimistokäyttöön täysin kunnostetut tilat luovat upeat puitteet erilaisille yrityksille. Kiinteistöstä löytyy sekä perinteistä huoneistotoimistotilaa että helposti muunneltavaa avotilaa.
Kaikille Fennia-korttelin kiinteistöille on myönnetty BREEAM In-Use Excellent -tason ympäristösertifikaatti ja koko kortteli toimii 100 % päästöttömällä energialla, kuten tuulisähköllä ja uusiutuvalla kaukolämmöllä.
Mikonkatu 19:n historia ulottuu vuoteen 1912, jolloin Konekauppa Aatra rakennutti paikalle viisikerroksisen, myöhäisjugendia edustavan liikerakennuksen arkkitehtitoimisto Palmqvist & Sjöströmin suunnitelmien mukaan. Rakennus siirtyi sittemmin Autoliike Nikolajeffin omistukseen, jolta se sai nimensä, ja se on suojeltu, rakennustaiteellisesti ja kulttuurihistoriallisesti arvokas osa Fennia-korttelia.
Historiallisen arvonsa ja keskeisen sijaintinsa ansiosta Mikonkatu 19 on ainutlaatuinen toimisto- ja liikekiinteistö Helsingin ydinkeskustassa, aivan Rautatientorin äärellä, josta on erinomaiset julkisen liikenteen yhteydet ympäri pääkaupunkiseutua.
Kiinteistö koostuu kahdesta rakennuksesta, joista toiseen on kulku Mikonkadulta ja toiseen Vilhonkadulta. Rakennukset ovat osittain yhteydessä toisiinsa. Katutasossa on liiketiloja ja ylemmissä kerroksissa on toimistotilaa.
Kiinteistön historiaa henkivät, moderniin toimistokäyttöön täysin kunnostetut tilat luovat upeat puitteet erilaisille yrityksille. Kiinteistöstä löytyy sekä perinteistä huoneistotoimistotilaa että helposti muunneltavaa avotilaa.
Kaikille Fennia-korttelin kiinteistöille on myönnetty BREEAM In-Use Excellent -tason ympäristösertifikaatti ja koko kortteli toimii 100 % päästöttömällä energialla, kuten tuulisähköllä ja uusiutuvalla kaukolämmöllä.
Sijainti
Kiinteistön vieressä sijaitsevat Rautatieasema ja Rautatientorin linja-autoasema takaavat erinomaisen julkisen liikenteen saavutettavuuden, jota täydentää korttelin alapuolella sijaitseva Helsingin yliopiston metroasema.
Pysäköinti
Autopaikat P-Eliel ja P-Kluuvi
Palvelut
Fennia-korttelissa on mittava määrä ravintoloita ja muita viihdepalveluita. Keskeinen sijainti ydinkeskustassa takaa sen, että kaikki kaupalliset ja yrityspalvelut sijaitsevat lyhyen kävelymatkan etäisyydellä. Työmatkapyöräilijöita varten löytyy pyörävarasto sekä sosiaalitilat.
Kulkuyhteydet
Lähimmälle bussipysäkille 100 m
Lähimmälle juna-asemalle 100 m
Lähimmälle metroasemalle 100 m
Lähimmälle raitiovaunupysäkille 200 m
Lentokentälle 30 min
Lähimmälle juna-asemalle 100 m
Lähimmälle metroasemalle 100 m
Lähimmälle raitiovaunupysäkille 200 m
Lentokentälle 30 min
Vapautuu
Kysy
Rakennusvuosi
1912
Kerros
4
Energiatehokkuusluokka
B2018 (liiketilat) D2018 (toimistot)
Ympäristöluokitus
BREEAM In-Use Excellent,GRESB Global Sector Leader 2025
Ota yhteyttä
Sponda Oy
Yrjönkatu 29C, 00100 Helsinki
Näytä puhelinnumero
020 43131
Laura Toponen
Senior Leasing Manager
Näytä puhelinnumero
+35850 413 4223
Sponda Oy
https://www.sponda.fiPyydä lisätietoa
