Vuokrataan toimistotilat - Jyväskylä
Ylistönmäentie 33, 40500 Jyväskylä #10825044
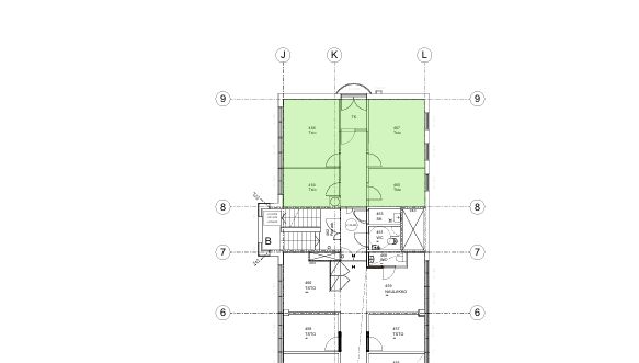
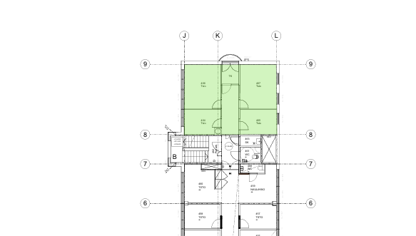
Vuokrataan n. 80 m2 toimistotilaa Ylistönmäeltä. Toimistotiloihin kuuluu yhteensä neljä toimistohuonetta sekä WC-tilat. Tähän toimistoon on saatavilla vain porrasyhteys.
Kaikkien vuokralaisten käytössä ovat myös kellarikerroksen kuntosali- ja suihkutilat sekä 6. kerroksen erikseen varattavat sauna- ja kokoustilat. Lisäksi rakennuksessa palvelee lounasravintola.
Autopaikkoja saatavilla kiinteistön pihalta, 30e/kk/kpl alv 0%.
Lisätiedot ja näytöt: Henri Kumpulainen, 040 864 3631, henri.kumpulainen@aveon.fi
Näkyvällä paikalla
Hissi
Aveon Real Estate Oy
Kauppakatu 18 C 26, 40100 Jyväskylä
Henri Kumpulainen
Puh.
Näytä puhelinnumero
040 864 3631
henri.kumpulainen@aveon.fi
Olemme kiinteistöliiketoiminnan asiantuntija, joka toimii yrittäjämäisesti neuvonantajana kiinteistökaupoissa, toimitilavälittämisessä sekä kiinteistökehityksessä.
Asiakkaitamme ovat kotimaiset ja ulkomaiset kiinteistönomistajat, -sijoittajat sekä tilojen käyttäjät kaikkialla Suomessa.
