Vuokrataan toimistotilat - Helsinki
Atomitie 1, Pitäjänmäki, 00370 Helsinki #10824970
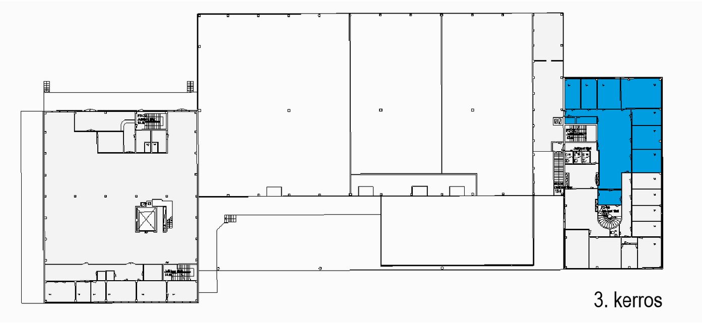
Vuokrattavissa remontoitu ja siisti kolmannen kerroksen toimistotila. Yhteiskäytössä olevat tilat (vessat, aula) jyvitetään pinta-alojen suhteessa vuokra-alueeseen, ala 5 m2.
Koy Atomitie 1 on vuonna 1963 rakennettu nelikerroksinen toimisto- ja varastorakennus, joka sijaitsee hyvällä paikalla Pitäjänmäellä, lähellä Vihdintietä. Juna-asemalle noin 500 metriä. Kylmiä autopaikkoja on vuokrattavana pihalta. Kiinteistössä koneellinen ilmanvaihto. Talossa on sauna. Kiinteistön lähettyviltä löytyy lounasravintola.
Lisätietoja numerosta 020 7290 710. Lisää kohteita osoitteessa www.premises.fi.
Kohteella ei ole lain edellyttämää energiatodistusta tai energialuokka ei tiedossa.Kerros: 2
CRE PREMISES
Puh. Näytä puhelinnumero 020 7290 710
Vantaankoskentie 14
01670 VANTAA
