Vuokrataan varastotilat - Helsinki
Rälssintie 6, Pukinmäki, 00720 Helsinki #10824894
Toimisto-, liike- ja varastotilaa kokonaispinta-alaltaan 2877 m² loistavalta sijainnilta Pukinmäestä, aivan Kehä I varrelta
Osoite
Rälssintie 6, 00720 Helsinki
Tilatyyppi
Varastotilaa
2877 m2
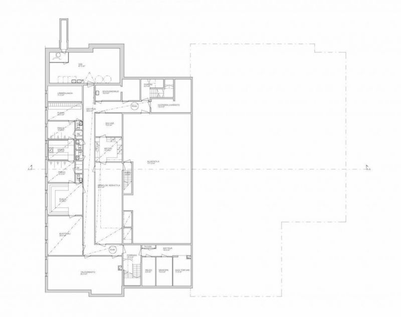
Pohjapiirros
Kiinteistö
2877 m² tilakokonaisuus jakautuu pohjakerrokseen ja kahteen maanpäälliseen kerrokseen.
1. ja 2. kerroksessa on toimisto- ja näyttelytilaa, kellarikerroksessa on sauna, ruokala, sosiaalitilat. Kokonaisuuteen sisältyy myös 850 m² varastotilaa, jonka kantavuus on 800 kg/m².
Kiinteistöllä on oma lastauslaituri.
Rakennus on 90-luvulla rakennettu monipuoliseen käyttöön taipuva kokonaisuus, joka kattaa kaiken kaikkiaan pohjakerroksen ja kaksi kerrosta.
Rakennuksella on runsaasti omia autopaikkoja (33 kpl) ja mahtavat puitteet sosiaalitiloille, joista saa pienellä päivityksellä haluamansa tasoiset.
Rälssintie 6 sijaitsee Pukinmäessä, lyhyen matkan päässä Pukinmäen juna-asemasta. Lähellä on useita päivittäispalveluja ja kauppakeskus Malmintori sijaitsee reilun 4 kilometrin päässä.
1. ja 2. kerroksessa on toimisto- ja näyttelytilaa, kellarikerroksessa on sauna, ruokala, sosiaalitilat. Kokonaisuuteen sisältyy myös 850 m² varastotilaa, jonka kantavuus on 800 kg/m².
Kiinteistöllä on oma lastauslaituri.
Rakennus on 90-luvulla rakennettu monipuoliseen käyttöön taipuva kokonaisuus, joka kattaa kaiken kaikkiaan pohjakerroksen ja kaksi kerrosta.
Rakennuksella on runsaasti omia autopaikkoja (33 kpl) ja mahtavat puitteet sosiaalitiloille, joista saa pienellä päivityksellä haluamansa tasoiset.
Rälssintie 6 sijaitsee Pukinmäessä, lyhyen matkan päässä Pukinmäen juna-asemasta. Lähellä on useita päivittäispalveluja ja kauppakeskus Malmintori sijaitsee reilun 4 kilometrin päässä.
Vapautuu
Heti
Energiatehokkuusluokka
Ei lain edellyttämää energiatodistusta
Ota yhteyttä
ScanReal Oy LKV
Opus Business Park
Hitsaajankatu 24
00810 Helsinki
info@scanreal.fi
Puh:
Näytä puhelinnumero
020 730 8830
Sopivat toimitilat yhdellä otolla!
Kartoitamme toimitilatarpeesi ja etsimme yrityksellesi parhaiten sopivat vapaat toimitilat. Koska vuokranantajat maksavat palvelumme, on tämä yrityksellesi veloituksetonta.
Palvelumme on tilanhakijalle ilmainen
Pyydä lisätietoa
