Vuokrataan toimistotilat - Espoo
Sola Business Valley, Sokerilinnantie 11, Leppävaara, 02600 Espoo #10824860
Moderni 341 m² toimisto loistopaikalla Kehä I:n reunassa, Leppävaarassa.
Osoite
Sokerilinnantie 11, 02600 Espoo
Tilatyyppi
Toimistotilaa
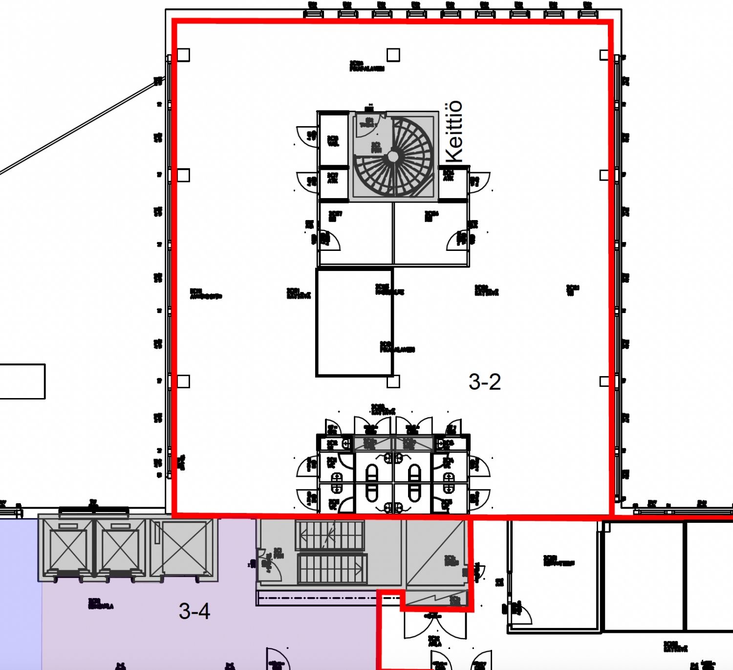
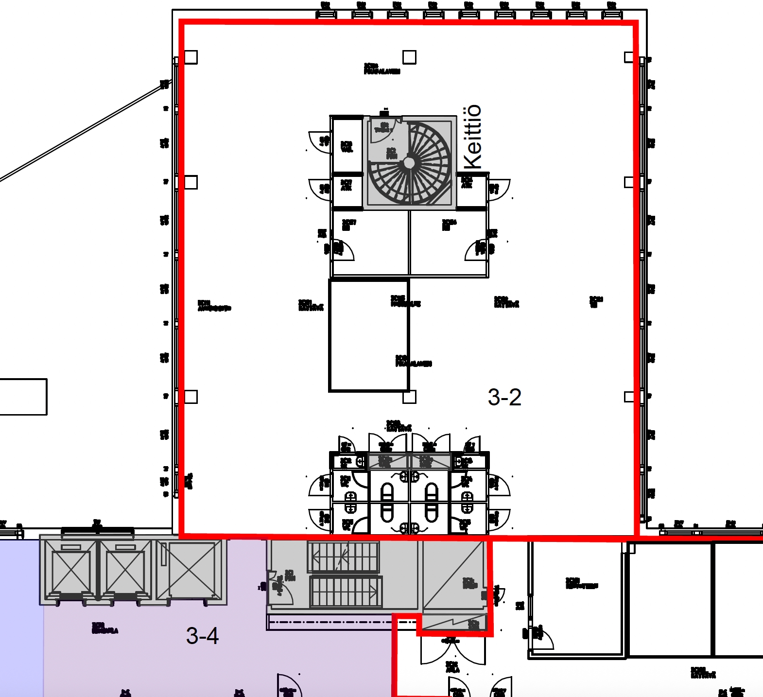
341 m2
Pohjapiirros
Virtuaaliesittely
Kiinteistö
3. kerroksen muuntojoustavaa toimistotilaa vuokrattavana loistopaikalla Kehä I:n reunassa, Leppävaaran palveluiden läheisyydessä.
Kohteessa on tarjolla kattavat business park -tason palvelukokonaisuudet kuten laadukas lounasravintola, moderneja vuokrattavia neuvottelutiloja sekä aulapalvelu. Kauppakeskus Sello ja Leppävaaran juna-asema sijaitsevat muutaman minuutin kävelymatkan päässä.
Tilaratkaisut ja sisustus voidaan suunnitella yhdessä uuden käyttäjän toiveiden mukaisesti. Nykyisellään tila on hybriditoimisto pienellä keittiöllä. Ilmoituksen kuvat ovat yleiskuvia kiinteistön eri tiloista.
Vuonna 2012 valmistunut Sola Business Valley on suosittu toimistokohde Kehä I:n varrella, Leppävaaran palveluiden ja juna-aseman vieressä. Pirteän värinen Sola ei jää huomaamatta, ja täältä löydät yrityksellesi edustavat toimitilat parhaalla sijainnilla.
Solassa on yli 16 000 m² vuokrattavaa toimitilaa kuudessa kerroksessa. Toimitilojen muunneltavuus, hyvät palvelut ja huippusijainti luovat Solasta erinomaisen työympäristön kaikenlaisille tiimeille. Sola Business Valley toimitilakohde, jolla on BREEAM In-use -ympäristösertifikaatti.
Toimitilat ovat muunneltavissa vastaamaan erilaisten yritysten toiveita. Ympäristöystävällisyys on otettu huomioon jo rakennusvaiheessa valitsemalla ekologisia ja energiatehokkaita rakennusmateriaaleja.
Kohteessa on käytössä myös sisäilman monitorointi joka mittaa sisäilman laatua ja pienhiukkastasoja toimitiloissa. Mittaus suoritetaan mm. kosteusmittareilla sekä lämpötila-ja hiilidioksidiantureilla.
Solan palveluiden ansiosta työympäristösi on toimiva ja viihtyisä. Yrityspuisto tarjoaa vuokralaisille arkea helpottavia tukipalveluita. Viereisen Kauppakeskus Sellon palvelut täydentävät Solan monipuolista palvelutarjontaa.
Solassa voit keskittyä työhösi enemmän ja huolehtia muusta vähemmän!
Kohteessa on tarjolla kattavat business park -tason palvelukokonaisuudet kuten laadukas lounasravintola, moderneja vuokrattavia neuvottelutiloja sekä aulapalvelu. Kauppakeskus Sello ja Leppävaaran juna-asema sijaitsevat muutaman minuutin kävelymatkan päässä.
Tilaratkaisut ja sisustus voidaan suunnitella yhdessä uuden käyttäjän toiveiden mukaisesti. Nykyisellään tila on hybriditoimisto pienellä keittiöllä. Ilmoituksen kuvat ovat yleiskuvia kiinteistön eri tiloista.
Vuonna 2012 valmistunut Sola Business Valley on suosittu toimistokohde Kehä I:n varrella, Leppävaaran palveluiden ja juna-aseman vieressä. Pirteän värinen Sola ei jää huomaamatta, ja täältä löydät yrityksellesi edustavat toimitilat parhaalla sijainnilla.
Solassa on yli 16 000 m² vuokrattavaa toimitilaa kuudessa kerroksessa. Toimitilojen muunneltavuus, hyvät palvelut ja huippusijainti luovat Solasta erinomaisen työympäristön kaikenlaisille tiimeille. Sola Business Valley toimitilakohde, jolla on BREEAM In-use -ympäristösertifikaatti.
Toimitilat ovat muunneltavissa vastaamaan erilaisten yritysten toiveita. Ympäristöystävällisyys on otettu huomioon jo rakennusvaiheessa valitsemalla ekologisia ja energiatehokkaita rakennusmateriaaleja.
Kohteessa on käytössä myös sisäilman monitorointi joka mittaa sisäilman laatua ja pienhiukkastasoja toimitiloissa. Mittaus suoritetaan mm. kosteusmittareilla sekä lämpötila-ja hiilidioksidiantureilla.
Solan palveluiden ansiosta työympäristösi on toimiva ja viihtyisä. Yrityspuisto tarjoaa vuokralaisille arkea helpottavia tukipalveluita. Viereisen Kauppakeskus Sellon palvelut täydentävät Solan monipuolista palvelutarjontaa.
Solassa voit keskittyä työhösi enemmän ja huolehtia muusta vähemmän!
Vapautuu
Heti
Rakennusvuosi
2012
Kerros
3
Energiatehokkuusluokka
Ei lain edellyttämää energiatodistusta
Ympäristöluokitus
BREEAM In-use
Näkyvällä paikalla
Hissi
Ota yhteyttä
ScanReal Oy LKV
Opus Business Park
Hitsaajankatu 24
00810 Helsinki
info@scanreal.fi
Puh:
Näytä puhelinnumero
020 730 8830
Sopivat toimitilat yhdellä otolla!
Kartoitamme toimitilatarpeesi ja etsimme yrityksellesi parhaiten sopivat vapaat toimitilat. Koska vuokranantajat maksavat palvelumme, on tämä yrityksellesi veloituksetonta.
OTA YHTEYTTÄ - SOVI NÄYTTÖ!
Kaikki kohteemme eivät ole netissä, kerro tilatarpeesi niin kartoitamme vaihtoehdot.
Palvelumme on tilanhakijalle ilmainen
Pyydä lisätietoa
