Vuokrataan toimistotilat - Helsinki
Meritullinkatu 1, Keskusta, 00170 Helsinki #10824790
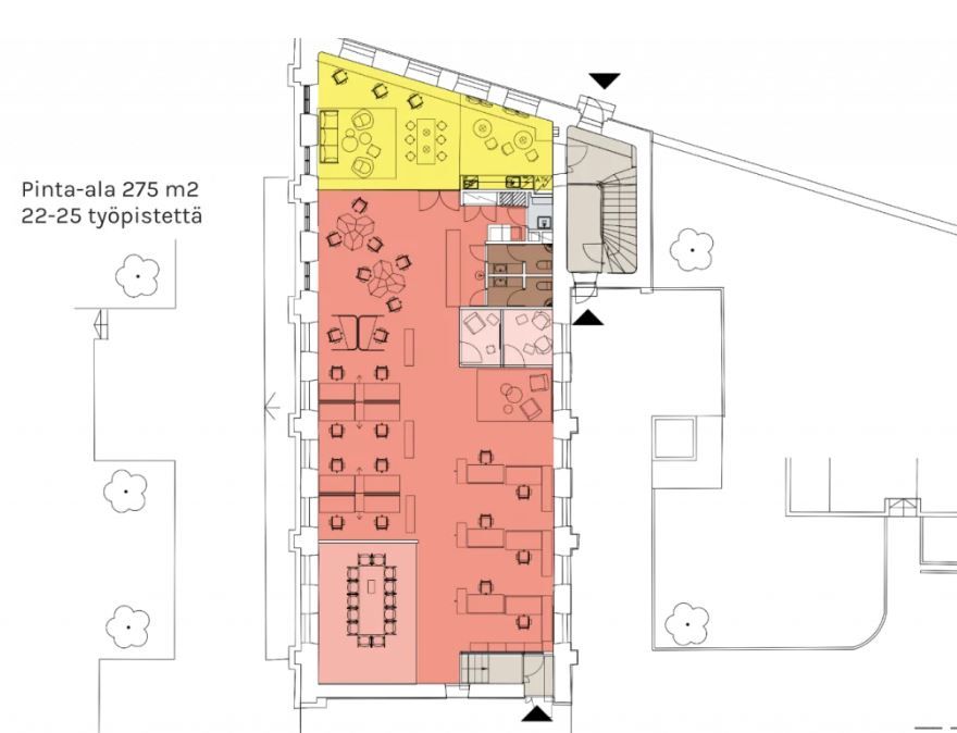
Vuokrataan uutta saneerattua toimistotilaa meren rannasta Helsingin keskustasta. Ensimmäisen kerroksen avotoimisto, jossa kaksi lasiseinäistä äänieristettyä huonetta, kaksi äänieristettyä vetäytymistilaa, keittiö ja taukotila sekä sosiaalitilat. Lattia palamattoa ja parkettia. Avara tila, jossa reilu huonekorkeus ja kaksi sisäänkäyntiä.
Vuokralaisten käytössä on lämmin ja lukittava pyöräparkki, pukuhuone- ja suihkutilat sekä vuokraan sisältyvä pieni kuntosali. Keskustan palvelut ja lounaspaikat lähistöllä. Hyvät julkiset yhteydet.
Lisätietoja soita 020 730 4530 tai info@repoint.fi. Palvelumme on tilanhakijalle ilmainen.
Repoint Toimitilat Oy
Itälahdenkatu 22 B, 00210 Helsinki
Näytä puhelinnumero
020 730 4530
Lisätietoja soita Näytä puhelinnumero 020 730 4530 tai info@repoint.fi
https://repoint.fi/