Vuokrataan toimistotilat - Helsinki
Itäkatu 11, Itäkeskus, 00930 Helsinki #10824754
Vuokrattavana siistiä toimistotilaa Itiksen kauppakeskuksen vierestä.
Osoite
Itäkatu 11, 00930 Helsinki
Tilatyyppi
Toimistotilaa
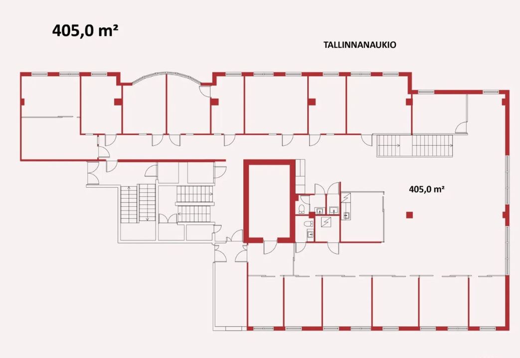
405 m2
Tilajako
Jaettavissa
Yhdistettävissä 364 m2 tilan kanssa.
Kiinteistö
Vuokrattavana siistiä toimistotilaa Itiksen kauppakeskuksen vierestä.
Sijainti
Itäkeskus, Helsinki
Pysäköinti
Itäkeskuksen parkkipaikat.
Palvelut
Kauppakeskus Itiksen palvelut.
Kulkuyhteydet
-Metro
-Bussi
-Oma auto
-Bussi
-Oma auto
Vapautuu
Heti
Kerros
2
Energiatehokkuusluokka
G2007
Näkyvällä paikalla
Jaettavissa
Hissi
Ota yhteyttä
REALIUM OY LKV
Tammasaarenkatu 1, 00180 Helsinki
Vaihde:
Näytä puhelinnumero
010 326 346
Tuomo Mäkelä
tuomo.makela@realium.fi
p.
Näytä puhelinnumero
044 050 1158
Joel Keto
joel.keto@realium.fi
p.
Näytä puhelinnumero
045 317 0330
KAIKKI TILAVAIHTOEHDOT KERRALLA!
SOITA - MEILAA JA TILAA NÄYTTÖ!
Ilmainen palvelu tilanhakijoille.
Kartoitamme parhaat tilavaihtoehdot.
Kaikki kohteet eivät ole netissä.
Pyydä lisätietoa
