Vuokrataan liiketilat - Helsinki
Mannerheimintie 96, Töölö, 00250 Helsinki #10824566
Liiketilaa Helsingin Töölössä.
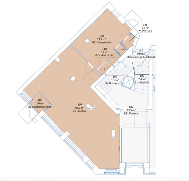
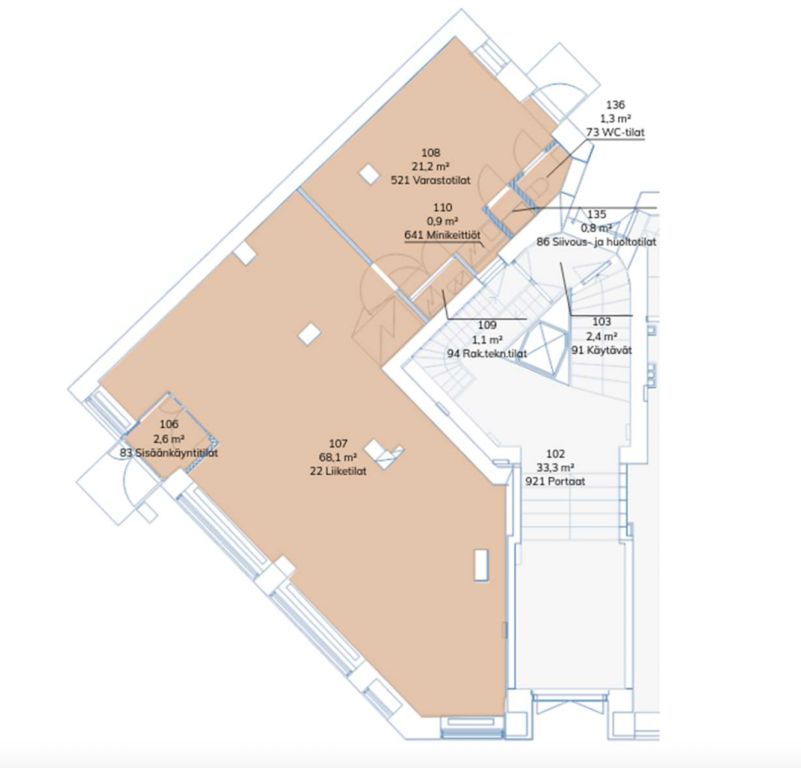
Tämä n. 100 m² tila koostuu 68 m² katutason liiketilasta, n. 21 m² varastotilasta sekä sosiaalitiloista. Tilaan on sisäänkäynti suoraan kadulta. Ei sovellu ravintola-, kahvila- tai parturi-kampaamotoimintaan. This premise is not suitable for a restaurant, cafeteria or a barber shop.
Mannerheimintie 96 sijaitsee näkyvällä paikalla Helsingin Töölössä. Alueelle on erinomaiset liikenneyhteydet busseilla ja raitiovaunuilla. Lähellä on useita erikoisliikkeitä ja kattava valikoima lounasravintoloita. Helsingin keskustan palvelut sijaitsevat lyhyen matkan päässä.
Kysy lisää numerosta 044 723 4700 tai info@bref.fi. Palvelumme on tilanhakijoille ilmainen.
Bureau Real Estate Finland Oy
Lars Sonckin kaari 16, 02600 Espoo
Näytä puhelinnumero
0447234700
Bureau Real Estate Finland Oy
https://www.bref.fi