Vuokrataan toimistotilat - Helsinki
Pursimiehenkatu 26, Punavuori, 00150 Helsinki #10824565
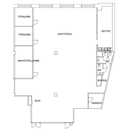
Toimistotilaa Helsingin Punavuoressa, Mestaritalossa.
Tämä siisti 280 m² toimistotila sijaitsee kiinteistön 5. kerroksessa. Toimistossa on avotilaa, huoneita sekä omat keittiö- ja wc-tilat.
Pursimiehenkatu 26 C eli Mestaritalo sijaitsee Helsingin Punavuoressa, Hietalahdenrannan läheisyydessä. Alueella on runsaasti lounasravintoloita, päivittäistavarapalvelut ja erikoisliikkeitä. Helsingin keskustan palvelut sijaitsevat lyhyen matkan päässä. Kiinteistössä toimii lukuisia mainos- ja media-alan yrityksiä sekä mm. arkkitehtitoimistoja.
Kysy lisää numerosta 044 723 4700 tai info@bref.fi. Palvelumme on tilanhakijoille ilmainen.
Bureau Real Estate Finland Oy
Lars Sonckin kaari 16, 02600 Espoo
Näytä puhelinnumero
0447234700
Bureau Real Estate Finland Oy
https://www.bref.fi