Vuokrataan tuotantotilat - Espoo
Koskelontie 13, Koskelo, 02920 Espoo #10824555
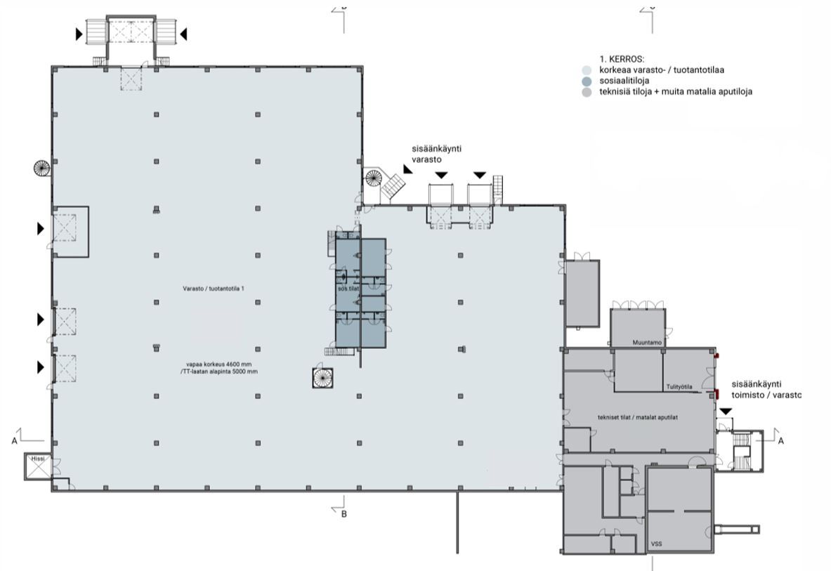
Vuokrataan tuotantoon ja varastointiin soveltuvaa tilaa Koskelosta.
Kolme lastaustaskua ja sisäänajomahdollisuus nosto-ovien kautta.
Lattian kantavuus n. 2000 kg/m2 ja tilan vapaa korkeus n. 4,6 metriä.
Tiloissa hyvä sähkökapasiteetti ja useita voimavirtapistokkeita.
Lisäksi vuokrattavissa toimistotilaa ja lisää tuotanto-/varastotilaa yläkerrasta. Hyvät sosiaalitilat ja reilusti pysäköintipaikkoja kiinteistön pihalla.
Osa ilmoituksen kuvista on arkkitehdin havainnekuvia. Tilat ovat heti vapaana.
Keskeinen ja näkyvä sijainti Kehä III:n välittömässä läheisyydessä sekä nopeat yhteydet kaikille pääväylille.
Lisätietoja soita 020 730 4530 tai info@repoint.fi. Palvelumme on tilanhakijalle ilmainen.
Repoint Toimitilat Oy
Itälahdenkatu 22 B, 00210 Helsinki
Näytä puhelinnumero
020 730 4530
Lisätietoja soita Näytä puhelinnumero 020 730 4530 tai info@repoint.fi
https://repoint.fi/