Vuokrataan toimistotilat - Helsinki
Lintulahdenkatu 10, Sörnäinen, 00500 Helsinki #10824520
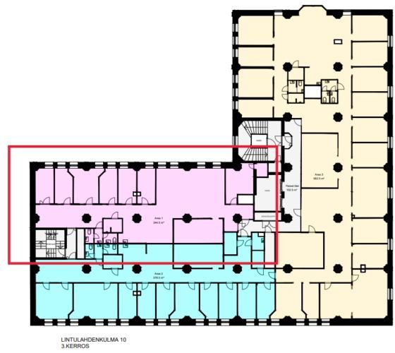
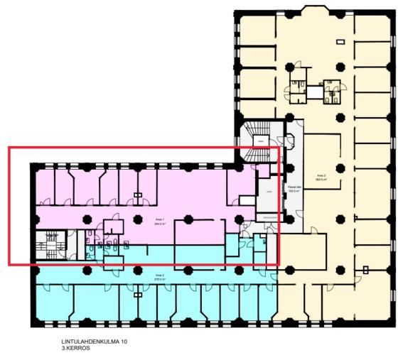
Vuokrataan Helsingin Sörnäisistä kolmannen kerroksen 244 m² toimistotila.
Sörnäisten maamerkki Lintulahdenkulma.
Arvokiinteistö Lintulahdenkulma on rakennettu 1920-luvulla. Kiinteistö on peruskorjattu toimistotiloiksi -90 luvulla. Tilat on mahdollista remontoida toimintaanne sopiviksi.
Kiinteistössä on cateringpalveluita tarjoava toimija, erikseen vuokrattavia neuvotteluhuoneita sekä ylimmän kerroksen saunatilat.
Kiinteistö sijaitsee keskeisellä paikalla hyvien liikenneyhteyksien varrella.
Kysy rohkeasti lisätietoja ja sovitaan käynti kohteella jo tänään!
Hissi
Hausala Oy
Erkkilänkatu 11, 33100 Tampere
Näytä puhelinnumero
050 472 7077
Mikko Ranta
Näytä puhelinnumero
050 360 6500
Mika Savikko
Näytä puhelinnumero
050 472 7077
