Vuokrataan toimistotilat - Helsinki
Pursimiehenkatu 26, Punavuori, 00150 Helsinki #10824512
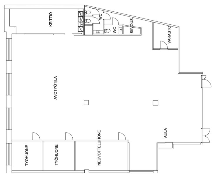
Vuokrattavana tyylikästä kustannustehokasta toimistotilaa 300 m2 Punavuoresta.
Osoite
Pursimiehenkatu 26, 00150 Helsinki
Tilatyyppi
Toimistotilaa
300 m2
Kiinteistö
Mestarintalon kiinteistön sijaitsee eläväisellä Punavuoren alueella tarjoten vuokralaisilleen Teollisuushenkistä toimistotilaa. Kohde on aikaisemmin toiminut Fazerin makeistehtaana.
Kiinteistön viidennessä kerroksessa sijaitseva toimistotila mahdollistaa viihtyisän työskentelyn upeine maisemineen Tehtaankadulle. Tilasta löytyy muutamia työhuoneita sekä neuvottelutila. Lisäksi käytettävissä on tyylikäs ja valoisa avotila sekä siisti keittiö.
Kohteesta löytyy myös erilliset sosiaalitilat polkupyöräilijöille.
Kiinteistön viidennessä kerroksessa sijaitseva toimistotila mahdollistaa viihtyisän työskentelyn upeine maisemineen Tehtaankadulle. Tilasta löytyy muutamia työhuoneita sekä neuvottelutila. Lisäksi käytettävissä on tyylikäs ja valoisa avotila sekä siisti keittiö.
Kohteesta löytyy myös erilliset sosiaalitilat polkupyöräilijöille.
Sijainti
Kohde sijaitsee Punavuoressa tarjoten hyvät peruspalvelut. Samasta kiinteistöstä löytyy mm. suosittu Bas Bas ravintolat. Viereisessä talossa toimii kahvila, Alepan ruokakauppa. Lähialueella toimii paljon muita kivijalkamyymälöitä ja ravintoloita. Samassa kiinteistössä löytyy myös Crossfit sali, Tanssisali yms.
Pysäköinti
Kohteen parkkihallista on mahdollista vuokrata pysäköintipaikka mikäli pysäköintipaikkoja on vapaana. Kohteen lähialueella on tarjolla runsaasti kadunvarsipysäköintiä.
Kulkuyhteydet
Kiinteistön läheisyydestä kulkee raitiovaunuyhteydet joka mahdollistaa sujuvan liikkumisen kiinteistölle. Pyörällä kulkeville tarjolla on sujuvat pyöräreitit monesta eri suunnasta. Heillä on käytettävissä myös omat sosiaalitilat.
Vapautuu
Heti
Rakennusvuosi
1898
Kerros
5 / 8
Energiatehokkuusluokka
Ei lain edellyttämää energiatodistusta
Ota yhteyttä
MAP Tilat Oy
Mika Hermaala
Näytä puhelinnumero
040 192 1313
mika.hermaala@maptilat.fi
Energiakuja 3, 00180 Helsinki
Maarit Helander
maarit.helander@maptilat.fi
Näytä puhelinnumero
044 593 8661
Pyydä lisätietoa
