Vuokrataan toimistotilat - Helsinki
Kaarlenkatu 9-11, Kallio, 00530 Helsinki #10824498
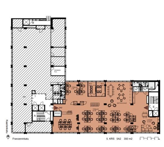
Vuokrataan Helsingin Kalliosta viidennen kerroksen 350 m² toimistotila.
K9 sijaitsee Kaarlenkadun keskellä Kalliossa. Tässä kiinteistössä on aulapalvelun lisäksi tyylikäs lounasravintola, tapahtumatila, kuntosali sekä saunamaailma.
Kiinteistön saavutettavuus julkisella liikenteellä on sujuvaa.
Kysy rohkeasti lisätietoja ja sovitaan käynti kohteella jo tänään!
Osoite
Kaarlenkatu 9-11, 00530 Helsinki
Tilatyyppi
Toimistotilaa
350 m2
Kiinteistö
K9
Palvelut
Aulapalvelut, edustustila, kokoustilat, kuntosali, ravintola, sauna ja suihkutilat.
Vapautuu
Kysy
Rakennusvuosi
1970
Kerros
5
Ota yhteyttä
Hausala Oy
Erkkilänkatu 11, 33100 Tampere
Näytä puhelinnumero
050 472 7077
Mikko Ranta
Näytä puhelinnumero
050 360 6500
Mika Savikko
Näytä puhelinnumero
050 472 7077
Pyydä lisätietoa
