Vuokrataan - Espoo
Linnoitustie 4, Leppävaara, 02600 Espoo #10824408
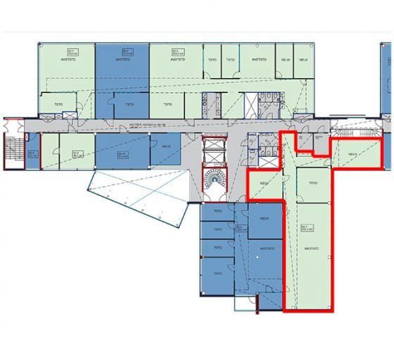
Vuokrataan Espoon Leppävaarasta toisen kerroksen heti vapaa 202,5 m² toimistotila.
Quartetto
Tästä talosta löydät Business Parkin nykyaikaiset palvelut. Huoneistot ovat muunneltavissa asiakkaan tarpeiden mukaan.
Talossa on hyvät palvelut mm. aulapalvelu ja kuntosali, sekä erilaisia neuvottelu- ja edustustiloja eri tarpeisiin. Talossa toimii myös lounasravintola. Kiinteistöllä on runsaasti autopaikkoja.
Quartetto sijaitsee näkyvällä paikalla Kehä I tuntumassa. Kauppakeskus Sello ja Leppävaaran juna-asema ovat kävelymatkan päässä. Raide-Jokeri kulkee kiinteistön edestä.
Kysy rohkeasti lisätietoja ja sovitaan käynti kohteella jo tänään!
Hausala Oy
Erkkilänkatu 11, 33100 Tampere
Näytä puhelinnumero
050 472 7077
Mikko Ranta
Näytä puhelinnumero
050 360 6500
Mika Savikko
Näytä puhelinnumero
050 472 7077
