Vuokrataan toimistotilat - Helsinki
Pohjoinen Rautatienkatu 25, Kamppi, 00100 Helsinki #10824361
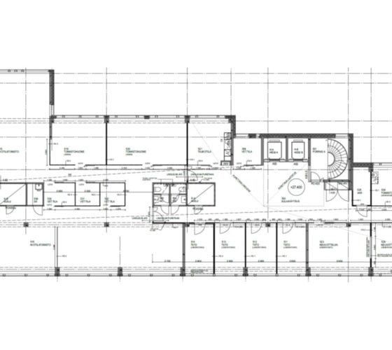
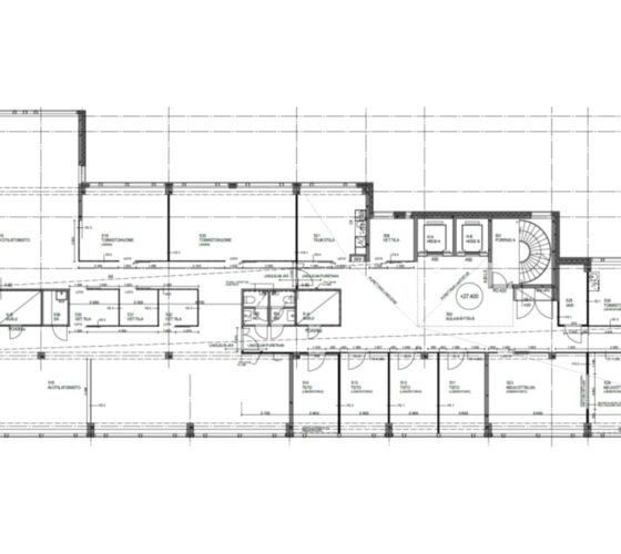
Vuokrataan Helsingin Kampista viidennen kerroksen moderni 636 m² toimistotila.
Selkeätä toimistotilaa Kampin välittömästä läheisyydestä. Tilat ovat helposti muokattavissa vuokralaisen tarpeisiin.
Talossa on hyvät palvelut mm. aulapalvelu, pyöräilijöiden käytössä on tilava pyöräkellari pukuhuoneineen, kiinteistöllä on pysäköintihalli 15 autolle sekä ensimmäisen kerroksen neuvottelu- ja kokoustilat ovat kaikkien vuokralaisten käytössä.
Kiinteistö sijaitsee Metron ja Kampin bussiterminaalin tuntumassa. Baana pyöräilyn pääväylä kulkee kiinteistön läheisyydestä.
Kysy rohkeasti lisätietoja ja sovitaan käynti kohteella jo tänään!
Hissi
Hausala Oy
Erkkilänkatu 11, 33100 Tampere
Näytä puhelinnumero
050 472 7077
Mikko Ranta
Näytä puhelinnumero
050 360 6500
Mika Savikko
Näytä puhelinnumero
050 472 7077
