Vuokrataan toimistotilat - Helsinki
Hermannin rantatie 8, Hermanni, 00580 Helsinki #10824313
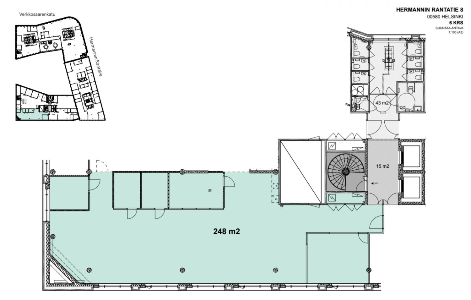
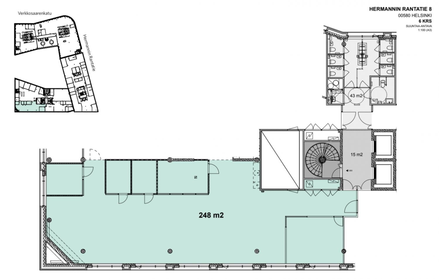
Moderni ja neliöitään tilavampi monitilatoimisto edustavassa toimistotalossa. Tilassa eri kokoisia huoneita ja avotilaa. Integroitu keittiö asennetaan asiakkaalle. Modernissa ja tyylikkäässä Rantatie Business Parkissa on erinomaiset palvelut ja toimitilat, jotka on suunniteltu ketterienkin organisaatioiden tarpeisiin mukautuviksi. Kohde sijaitsee erinomaisella paikalla Kalasataman alueella.
Modernissa ja tyylikkäässä Rantatie Business Parkissa on erinomaiset palvelut ja toimitilat, jotka on suunniteltu ketterienkin organisaatioiden tarpeisiin mukautuviksi. Kohde sijaitsee erinomaisella paikalla Kalasataman alueella. Metro ja REDI ovat kävelymatkan päässä.
Lisätietoja 020 7290 710. Lisää kohteita premises.fi.
Kohteella ei ole lain edellyttämää energiatodistusta tai energialuokka ei tiedossa.Kerros: 6
CRE PREMISES
Puh. Näytä puhelinnumero 020 7290 710
Vantaankoskentie 14
01670 VANTAA
