Vuokrataan toimistotilat, tuotantotilat, varastotilat - Helsinki
Vattuniemenkatu 19, Lauttasaari, 00210 Helsinki #10824312
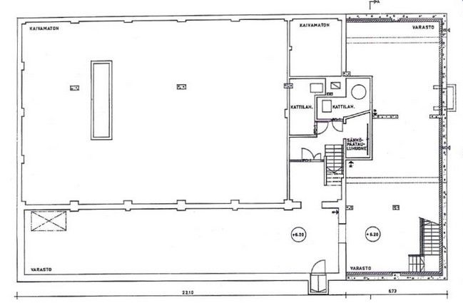
Vuokrataan varasto-/tuotanto- sekä toimistotilaa 824 m2 Helsingin Lauttasaaresta. Tila koostuu katutason tilasta 524 m2 ( korkeus n. 3,5 m) sekä 300 m2 kellaritilasta, mihin rakennettu tavarahissi. Katutason tilan varastoon johtavat kuvan pariovet. Tilat vuokrataan mieluiten yhdessä.
Lisätietoja: p. 045 261 6555 /Mika
Lisää kohteita: www.premises.fi
Kohteella ei ole lain edellyttämää energiatodistusta tai sitä ei ole saatavilla.
Osoite
Vattuniemenkatu 19, 00210 Helsinki
Tilatyyppi
Toimistotilaa
300 - 824 m2
Tuotantotilaa
300 - 824 m2
Varastotilaa
300 - 824 m2
Yhteensä
300 - 824 m2
Ota yhteyttä
CRE PREMISES
Puh. Näytä puhelinnumero 020 7290 710
Vantaankoskentie 14
01670 VANTAA
Pyydä lisätietoa
