Vuokrataan toimistotilat - Helsinki
Tammasaarenkatu 7, Ruoholahti, 00180 Helsinki #10824215
Modernia toimistotilaa merellisessä Ruoholahdessa!
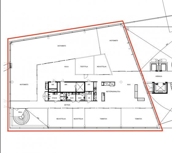
Vuokrattavana valoisa ja avara 571 m² toimistotila Helsingin Ruoholahdessa, High Tech Centerin toisessa kerroksessa. Tila on heti vapaa ja tarjoaa erinomaiset puitteet vaativankin yrityksen tarpeisiin.
HTC Helsinki tunnetaan upeasta sijainnistaan meren äärellä sekä palkitusta arkkitehtuuristaan. Viidestä modernista rakennuksesta koostuva kokonaisuus tarjoaa vuokralaisilleen kattavat ja laadukkaat business park -palvelut. Käytössäsi on muun muassa tyylikkäät neuvottelu- ja edustustilat, aulapalvelut, kaksi ravintolaa, kuntosali, auditorio ja catering-palvelut. Kaikki saman katon alla! Myös pysäköinti on vaivatonta yhteisessä parkkihallissa.
Sijainti on loistava, Ruoholahden metroasemalle on vain lyhyt kävelymatka, ja alueelle on sujuvat yhteydet niin julkisilla kuin omalla autollakin.
Ota yhteyttä jo tänään ja tule tutustumaan, tämä tila pitää kokea paikan päällä!
Hausala Oy
Erkkilänkatu 11, 33100 Tampere
Näytä puhelinnumero
050 472 7077
Mikko Ranta
Näytä puhelinnumero
050 360 6500
Mika Savikko
Näytä puhelinnumero
050 472 7077
