Vuokrataan toimistotilat - Helsinki
Työpajankatu 13, Kalasatama, 00580 Helsinki #10824209
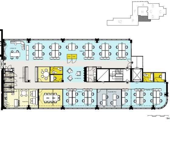
Vuokrattavana valoisa ja helposti muunneltava 469 m² toimistotila Helsingin Kalasatamassa, viidennessä kerroksessa. Tila on heti vapaa ja tarjoaa erinomaiset puitteet keskittymistä ja yhteistyötä tukevaksi työympäristöksi.
Työpaja on uuden ajan työpaikka, jossa modernit toimitilat, ensiluokkaiset palvelut ja erinomainen sijainti yhdistyvät ainutlaatuiseksi kokonaisuudeksi. Suunnittelussa on kiinnitetty erityistä huomiota tilojen viihtyisyyteen, tehokkuuteen ja joustavuuteen. Työpajassa arki sujuu mutkattomasti â käytettävissä on aulapalvelu, monipuolinen lounasravintola, kattavat neuvottelu- ja edustustilat, kuntosali ja liikuntatila sekä viihtyisät saunatilat palautumiseen. Tapahtumia ja tilaisuuksia voi järjestää ravintolassa, neuvottelutiloissa, kattoterassilla tai lämpiössä.
Kalasataman metroasema ja kauppakeskus Redi sijaitsevat aivan vieressä, joten liikenneyhteydet joka suuntaan ovat erinomaiset. Kiinteistölle on myönnetty LEED Gold -sertifikaatti, joka kertoo sitoutumisesta vastuullisuuteen ja korkeaan rakennuslaatuun.
Ota yhteyttä jo tänään ja sovitaan esittely â tämä tila kannattaa nähdä paikan päällä!
Hausala Oy
Erkkilänkatu 11, 33100 Tampere
Näytä puhelinnumero
050 472 7077
Mikko Ranta
Näytä puhelinnumero
050 360 6500
Mika Savikko
Näytä puhelinnumero
050 472 7077
