Vuokrataan varastotilat, työtilat - Vantaa
Kuussillantie 18, Vaarala, 01230 Vantaa #10824177
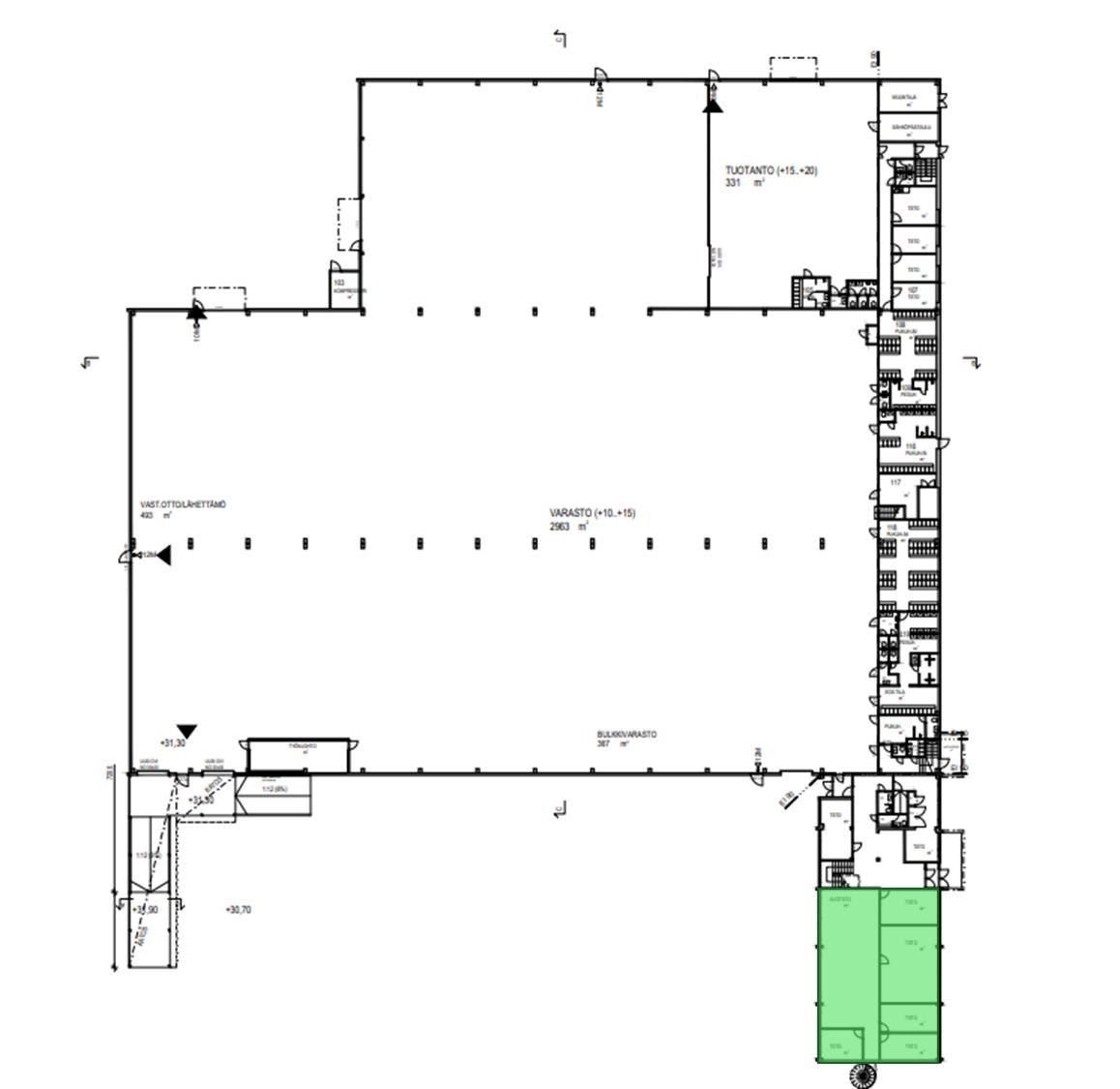
Vuokrataan 183 m² sisään ajettava varastotila Vaaralassa. Tilan vapaa korkeus on noin 2,5 metriä ja sisäänajo on pariovista. Tämä tila on kopitettua tilaa, joten siitä ei saa yhtenäistä isoa varastotilaa. Soveltuu lähinnä kevyeen varastointiin.
Varasto- ja tuotantokiinteistö on valmistunut vuonna 1976 / 1990. Varasto- ja toimistotilat on modernisoitu vuonna 2009. Tilat soveltuvat monenlaiseen toimintaan. Toimivat lastaus- ja purkumahdollisuudet useiden lastauslaitureiden, nosto-ovien ja ramppien kautta mahdollistavat tehokkaan toiminnan. Isolla piha-alueella on mahdollista varastoida tavaraa pihavarastohallissa sekä pihakatoksessa.
Kiinteistön sijainti on logistisesti erinomainen Vantaalla Vaaralan teollisuusalueella Kehä III:n ja Lahden väylän välittömässä läheisyydessä. Helsinki-Vantaan lentoasemalta ja Vuosaaren satamasta on hyvät yhteydet kiinteistölle.
Ota yhteyttä, käydään kiertämässä kohteen tilat ja suunnitellaan teille sopiva kokonaisuus.
Hausala Oy
Erkkilänkatu 11, 33100 Tampere
Näytä puhelinnumero
050 472 7077
Matti Pöyhiä
Näytä puhelinnumero
040 722 6650
Mika Savikko
Näytä puhelinnumero
050 472 7077
