Vuokrataan toimistotilat - Helsinki
Hämeentie 15, Sörnäinen, 00500 Helsinki #10824148
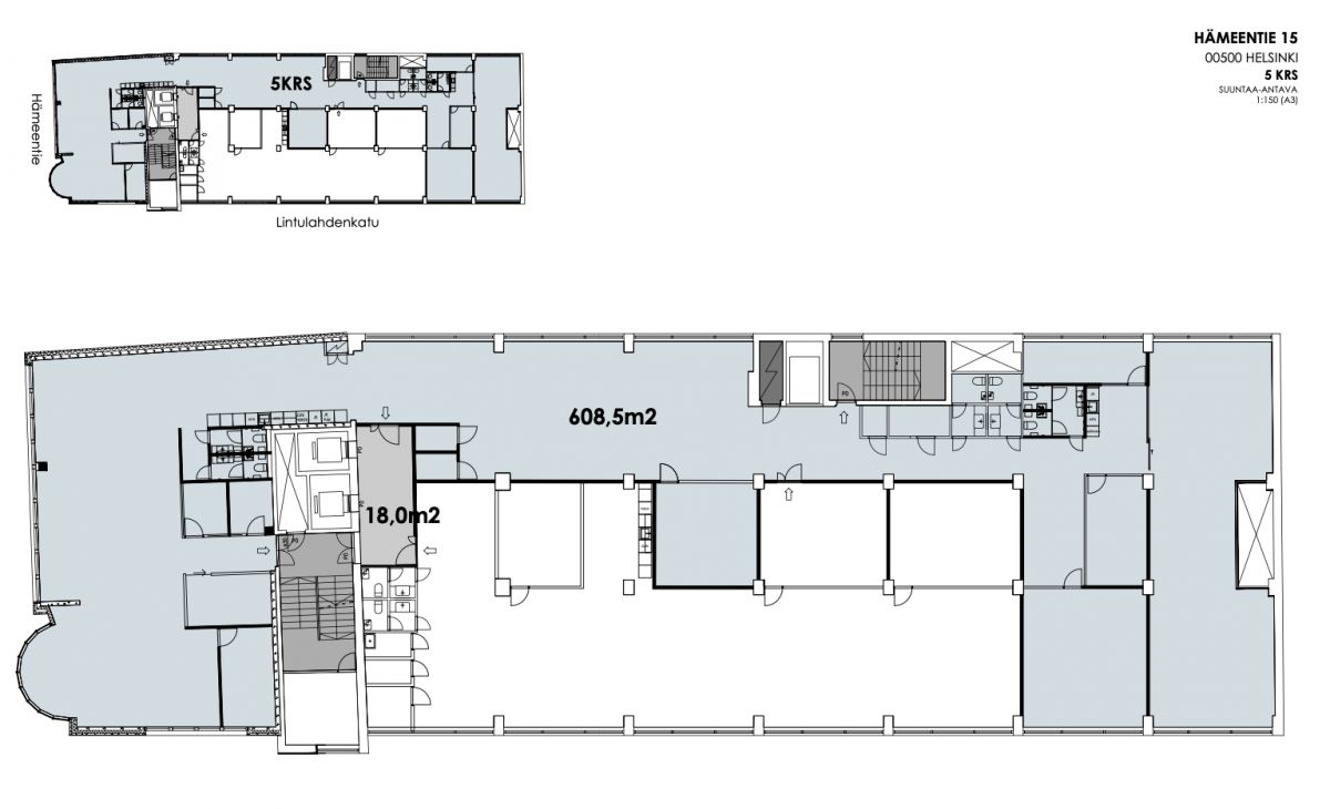
Vuokrataan siisti monitilatoimisto Sörnäisistä. Avarassa tilassa on avotoimistoa ja erikokoisia huoneita. Ilmoituksen kuvissa esimerkkejä taloon toteutetuista tiloista.
Hämeentie 15 kiinteistö sijaitsee hyvällä paikalla Sörnäisissä. Julkiset kulkuyhteydet ovat erinomaiset, raitiovaunu- ja bussipysäkit Hämeentiellä ja Sörnäisten metroasemalle on kävelyetäisyydellä.
Lisätietoja soita 020 730 4530 tai info@repoint.fi. Palvelumme on tilanhakijalle ilmainen.
Repoint Toimitilat Oy
Itälahdenkatu 22 B, 00210 Helsinki
Näytä puhelinnumero
020 730 4530
Lisätietoja soita Näytä puhelinnumero 020 730 4530 tai info@repoint.fi
https://repoint.fi/