Vuokrataan toimistotilat - Helsinki
Tallberginkatu 2, Ruoholahti, 00180 Helsinki #10824118
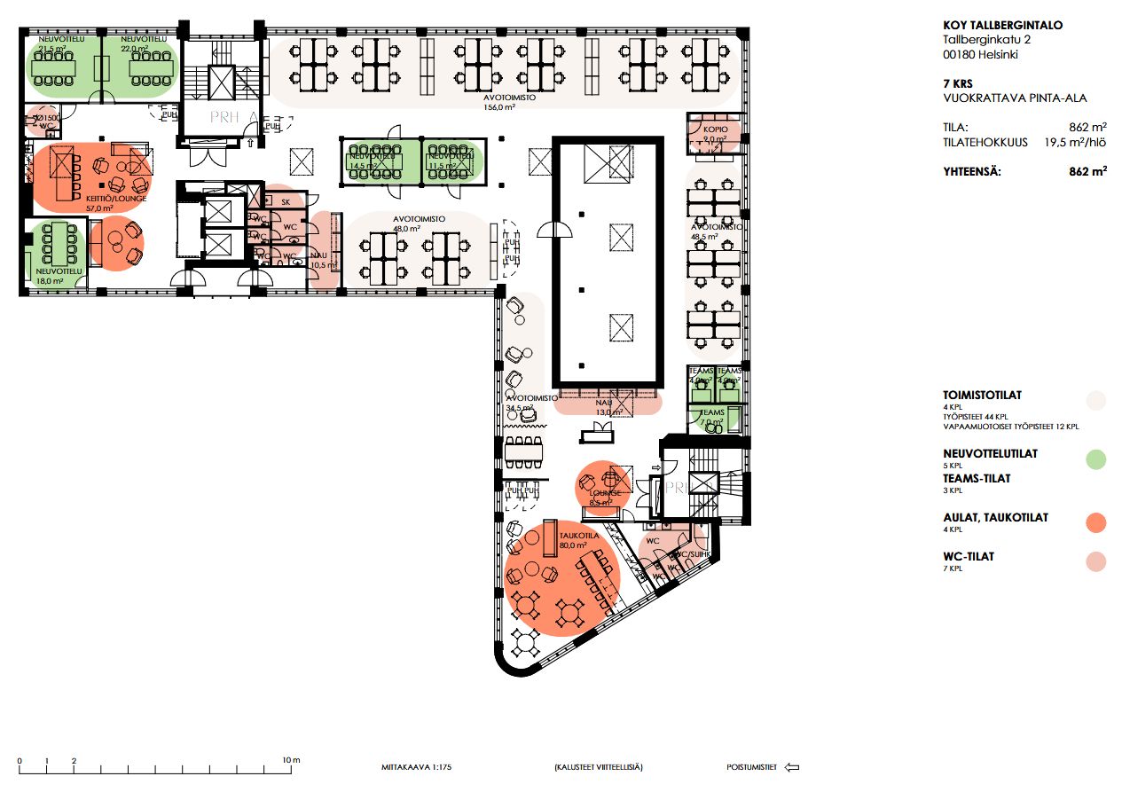
Vuokraa tästä itsellesi upea ylimmän kerroksen persoonallinen toimistotila meren äärellä. Tilasta hienot näkymät eri ilmansuuntiin ja tunnelmaa tuovat kattoikkunat. Tilat räätälöidään täysin vuokralaisen toiveiden mukaan. Käynnit sekä A- että B-rapuista.
Kiinteistö sijaitsee Helsingin Ruoholahdessa, meren läheisyydessä hyvien julkisten yhteyksien varrella.
Lisätietoja numerosta 020 7290 710. Lisää kohteita osoitteessa www.premises.fi.
Kohteella ei ole lain edellyttämää energiatodistusta tai energialuokka ei tiedossa.Kerros: 7
Osoite
Tallberginkatu 2, 00180 Helsinki
Tilatyyppi
Toimistotilaa
862 m2
Kulkuyhteydet
Erinomaiset liikenneyhteydet. Bussit, raitiovaunut ja metro ovat pienen kävelymatkan päässä.
Ota yhteyttä
CRE PREMISES
Puh. Näytä puhelinnumero 020 7290 710
Vantaankoskentie 14
01670 VANTAA
Pyydä lisätietoa
