Vuokrataan toimistotilat - Helsinki
Pursimiehenkatu 29-31, Punavuori, 00150 Helsinki #10824116
Hieno industrial-henkinen tila legendaarisessa Merikorttelissa. Tila on muuttovalmis ja sekä korkea huonekorkeus.
Merikortteli on omaleimainen ja kulttuurihistoriallisesti ainutlaatuinen toimintaympäristö, jossa on aitoa kaupunkilaishenkeä. Merikortteli on alunperin rakennettu lähinnä teollisuustuotantoa varten ja peruskorjattu korkeatasoisiksi toimisto-, studio- ja työtiloiksi, unohtamatta säilyttää teollista jylhyyttä. Merikortteli käsittää 28 000 m2 kuudessa maanpäällisessä kerroksessa.
Talon oma arkkitehti avustaa uusien toimitilojen suunnittelussa ja sovittamisessa asiakkaan tarpeiden mukaisesti niin että tilat tulevat mahdollisimman tehokkaaseen käyttöön. Kerrosten 18-metrinen leveys yhdistettynä suureen huonekorkeuteen tarjoaa lähes rajattomat mahdollisuudet tilojen muokkaukseen asiakkaan tarpeiden ja toiveiden mukaisesti.
Merikorttelilla on runsaasti pysäköintimahdollisuuksia sekä korttelin omassa parkkihallissa että läheisissä parkkihalleissa. Vieraskäyttöön sisäpihalla on kaksi mittarikäyttöistä pysäköintipaikkaa.
Lisätiedot: 020 7290 170, lisää kohteita: www.premises.fi
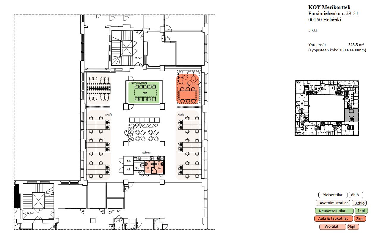
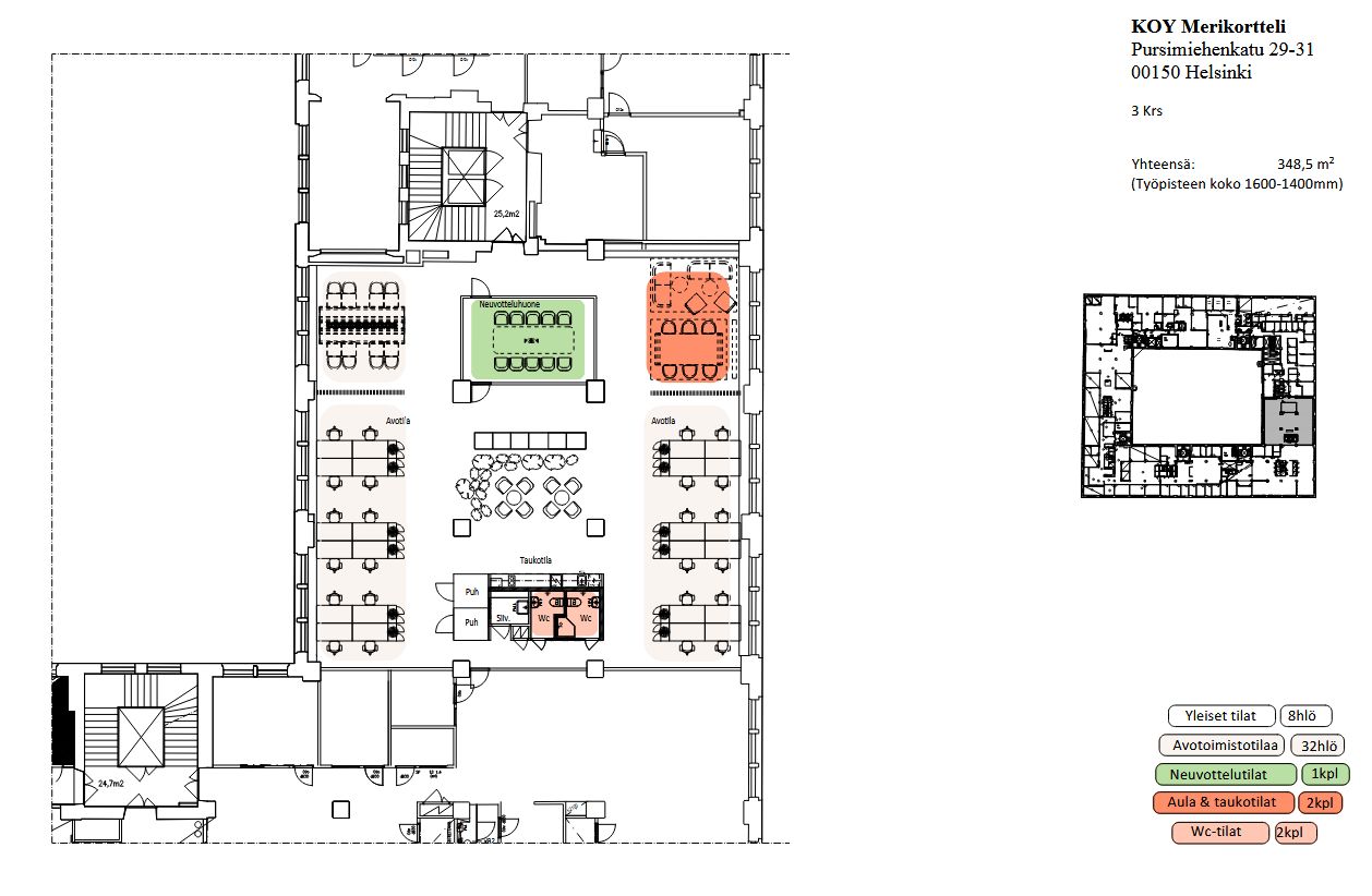
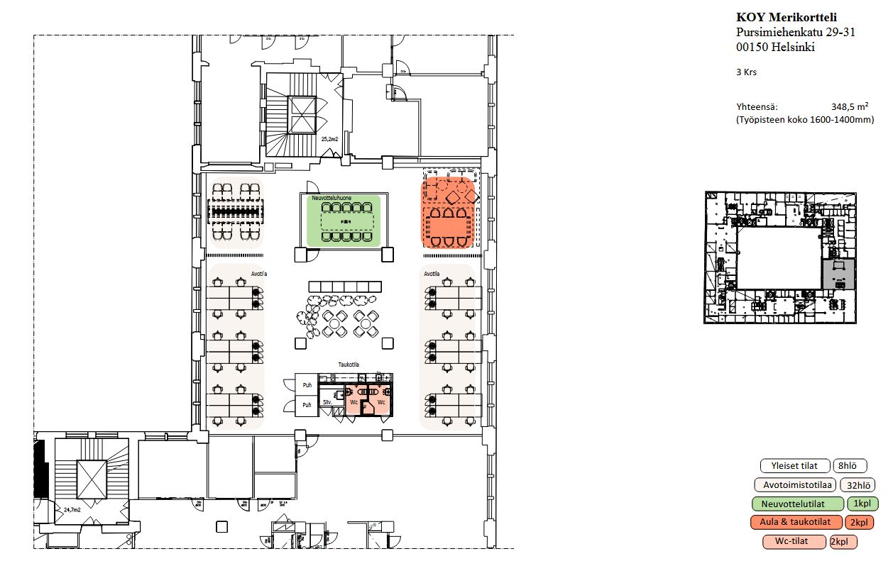
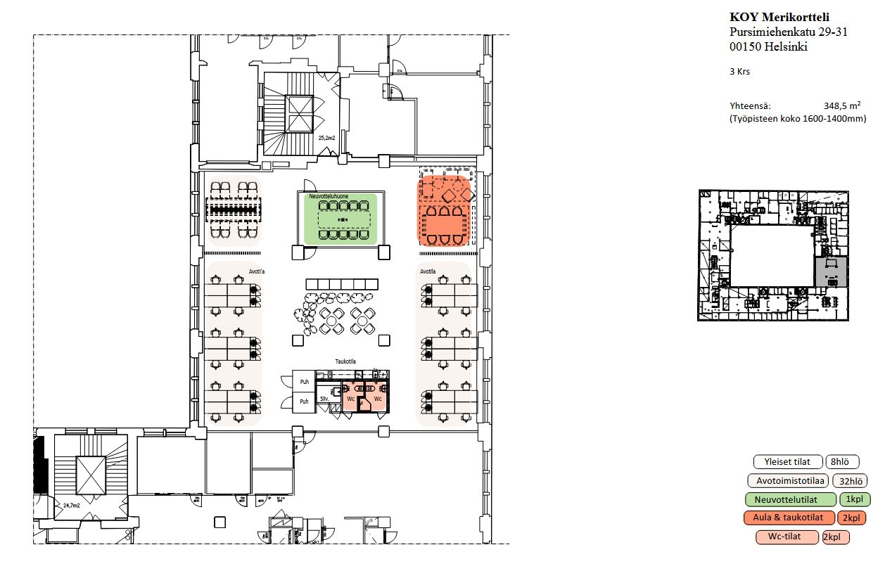
Kohteella ei ole lain edellyttämää energiatodistusta tai energialuokka ei tiedossa.Kerros: 3
CRE PREMISES
Puh. Näytä puhelinnumero 020 7290 710
Vantaankoskentie 14
01670 VANTAA
