Vuokrataan toimistotilat - Helsinki
Siltasaarenkatu 12, Hakaniemi, 00530 Helsinki #10824100
Tila on upea ja täysin remontoitu Aina Valmis -konseptin mukaisesti laadukkailla ja vastuullisilla materiaaleilla ja toimiva tilaratkaisu vastaa nykytyöelämän vaatimuksia.
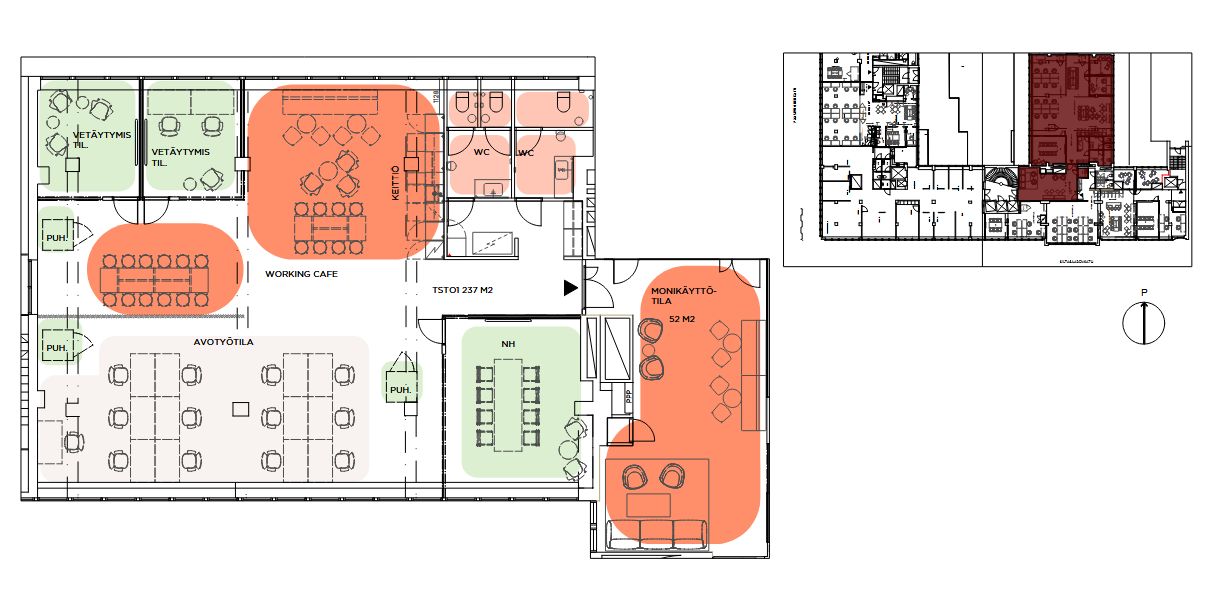
Tilassa on neljä vetäytymistilaa/neuvotteluhuonetta, monikäyttötila, keittiö-lounge/working-cafe, kaksi wc:tä sekä siivouskomero. Tilan tyyli on säväyttävä ja sisustus on kontrastinen, ja se on saanut vaikutteensa urbaanista kaupunkielämästä.
Tämä Aina Valmis toimisto sijaitsee Hakaniemessä Paasivuorenpuistikon laidalla. Kohteesta on upeat näkymät Paasivuorenpuistikkoon, joka on todella kaunis viheralue ja valittu vuoden ympäristörakenteeksi vuonna 2020. Toimistoa ympäröivät Hakaniemen monet palvelut ja mitä parhaimmat liikenneyhteydet - tavoitteena onkin mahdollistaa koko henkilöstölle hyvä ja sujuva arki.
Lisätietoja numerosta 020 7290 710. Lisää kohteita osoitteessa premises.fi.
Kohteella ei ole lain edellyttämää energiatodistusta tai energialuokka ei tiedossa.Kerros: 7
CRE PREMISES
Puh. Näytä puhelinnumero 020 7290 710
Vantaankoskentie 14
01670 VANTAA
