Vuokrataan toimistotilat - Espoo
Karaportti 5, 02610 Espoo #10824071
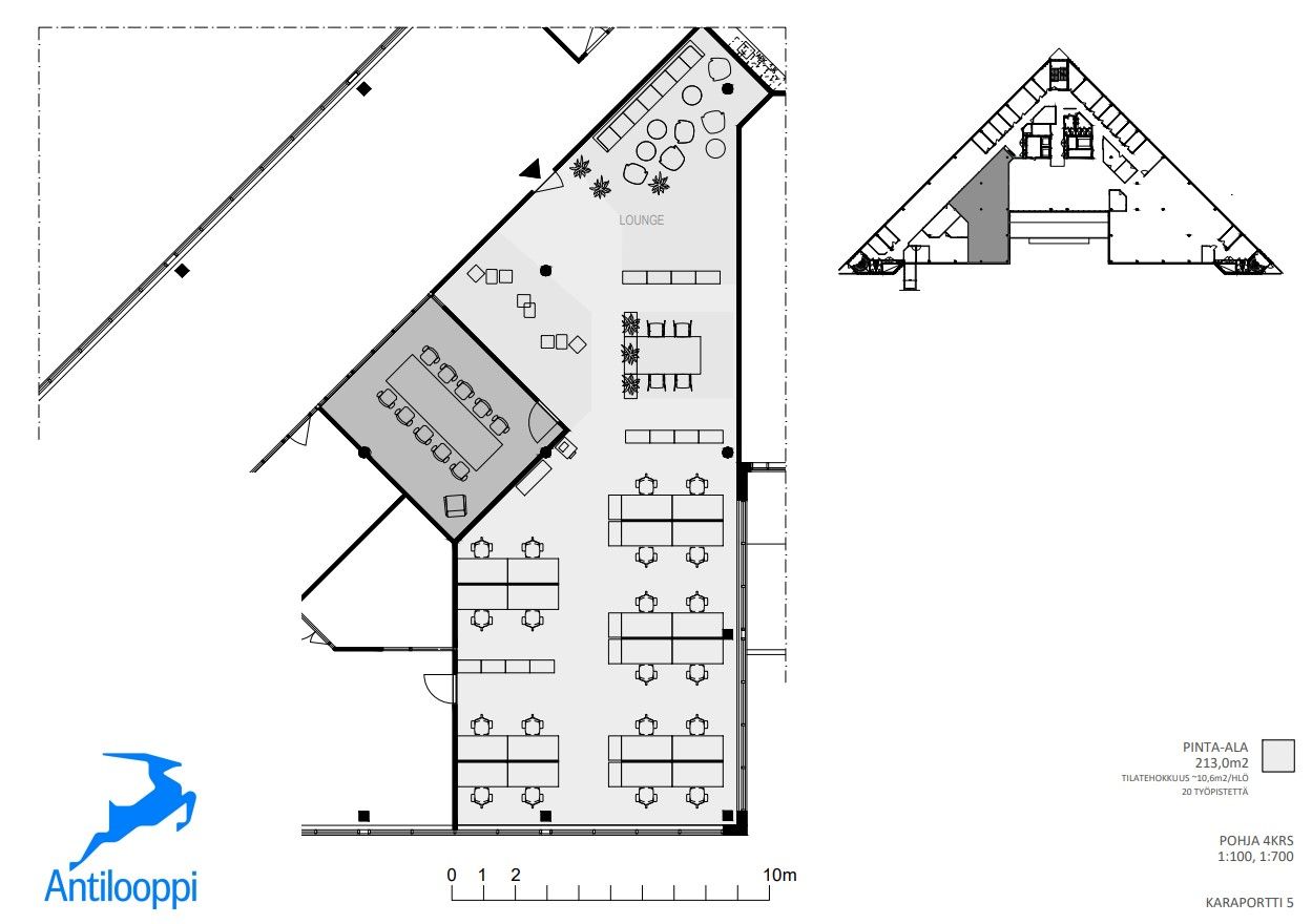
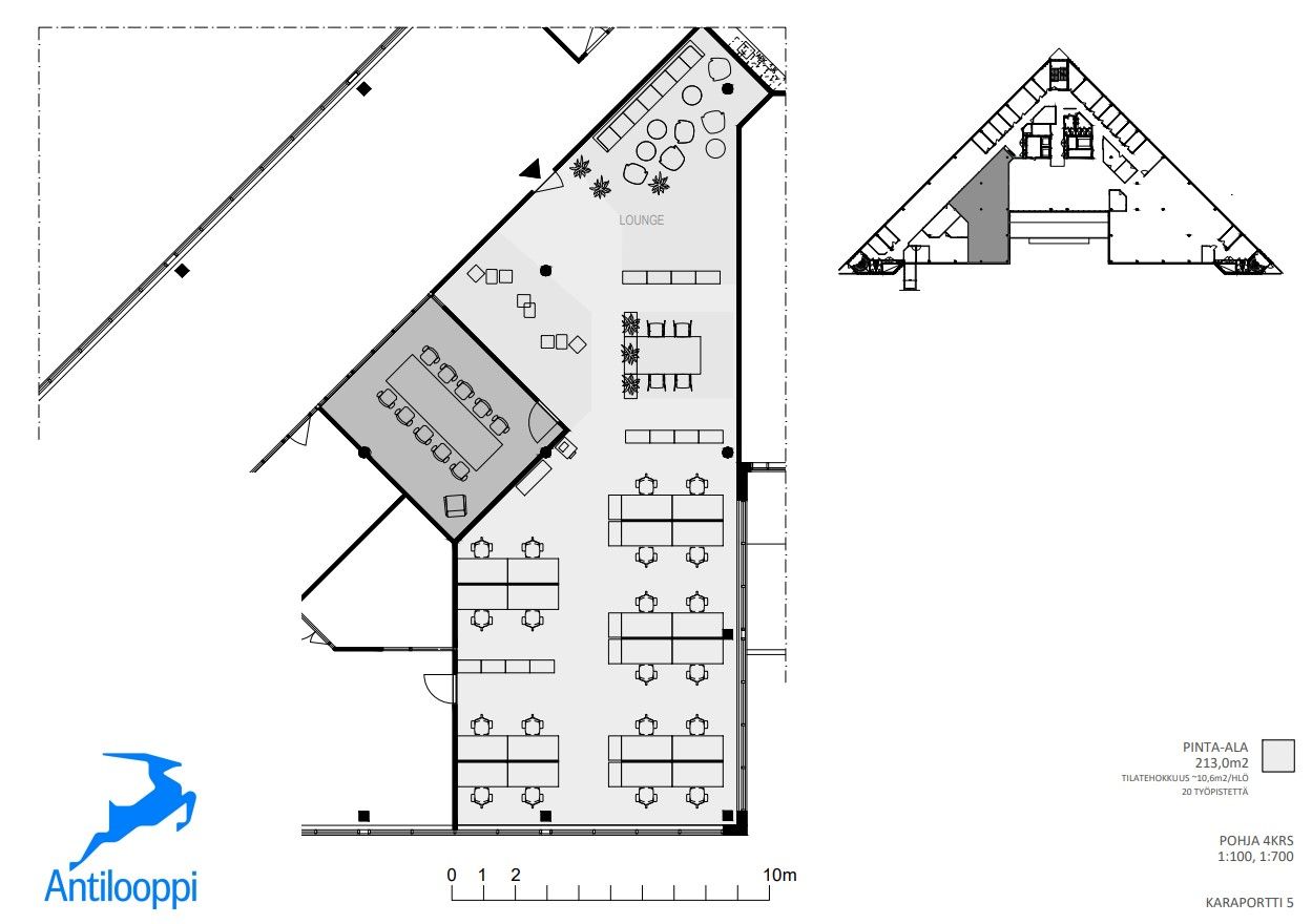
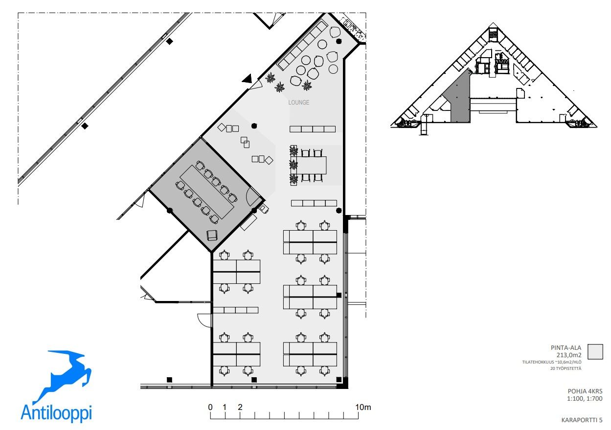
Vuokrataan muuttovalmis tyylikäs toimistotila, joka koostuu avotilasta sekä yhdestä työhuoneesta. Yhteiskäyttöiset keittiö- ja neuvottelutilat.
Karaportti on luotu laatutietoisen yrityksen tarpeisiin. Valoisat tilat ovat vaivattomasti muunneltavissa avo- ja huonetoimistoksi sekä niiden yhdistelmiksi. Kiinteistössä on moderni talotekniikka, neuvottelu- ja edustustilat sekä lastauslaituri ja pienvarastotilaa.
Lisätiedot 020 7290 710. Lisää kohteita www.premises.fi
Kohteella ei ole lain edellyttämää energiatodistusta tai energialuokka ei tiedossa.Kerros: 4
CRE PREMISES
Puh. Näytä puhelinnumero 020 7290 710
Vantaankoskentie 14
01670 VANTAA
