Vuokrataan toimistotilat - Helsinki
Bulevardi 7, Kamppi, keskusta, 00120 Helsinki #10824050
Rakennuksen kuvaus:
Tasokkaasti saneerattu Bulevardi 7 on vuonna 1939 valmistunut Oiva Kallion suunnittelema funktionalismia edustava kiinteistö. Kiinteistö on kaksiosainen, ja Bulevardin sekä sisäpihan puoleiset osat yhdistyvät toisiinsa alempien kerrosten kautta. Kolmannesta kerroksesta alkaen talot ovat irrallisia. Kiinteistö sijaitsee loistavalla sijainnilla Bulevardin alkupäässä, vain lyhyen kävelymatkan päässä rautatieasemalta. Ratikkalinja kulkee suoraan talon edessä.
Tilan kuvaus:
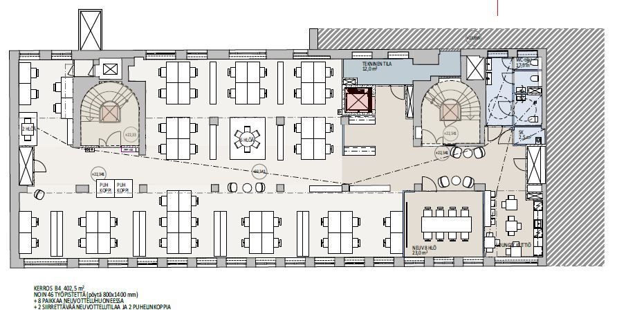
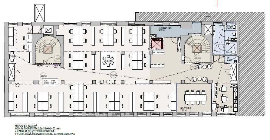
Bulevardin varrelta vuokrattavana saneerattua toimistotilaa. Kiinteistö jakautuu kahteen osaan, Bulevardin puoleiseen ja sisäpihan puoleiseen taloon. Neljäs kerros on siis kaksiosainen ja 404m² kokoinen tila sijoittuu sisäpihan puoleiseen taloon viihtyisin pihanäkymin. Vapaa tila kattaa koko kerroksen. Kerroksessa on ikkunat molemmin puolin ja toimisto on valoisa.
Kerros: 4
