Vuokrataan/myydään liiketilat, näyttelytilat - Raisio
Piilipuunkatu 4, 21200 Raisio #10824001
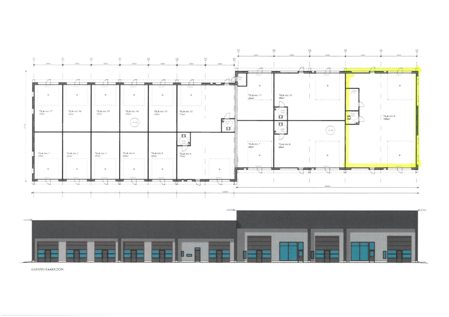
Valoisa myymälä / hallitila Raisiossa moottoritien reunassa.
Osoite
Piilipuunkatu 4, 21200 Raisio
Tilatyyppi
Liiketilaa
189 m2
Näyttelytilaa
189 m2
Yhteensä
189 m2
Pohjapiirros
Vuokra
2079 € / kk +alv
Myyntihinta
330.000 €
Kiinteistö
Moottoritien liittymän tuntumassa ABC liikenneaseman läheisyydessä valoisa 189 m2 liikehuoneisto. Sisältää hallitilan, toimiston ja wc:n Kaksi suurta päätyikkunaa. Läpiajomahdollisuus. Heti vapaa!
Sijainti
Raision ABC liikenneaseman vieressä moottoritien laidassa.
Vapautuu
Heti
Ota yhteyttä
X-Index Oy
Näytä puhelinnumero 0400 827 701
Vähäheikkiläntie 56 C 70
20810 Turku
Pyydä lisätietoa
