Vuokrataan toimistotilat - Helsinki
Korkeavuorenkatu 30, Kaartinkaupunki, 00130 Helsinki #10823972
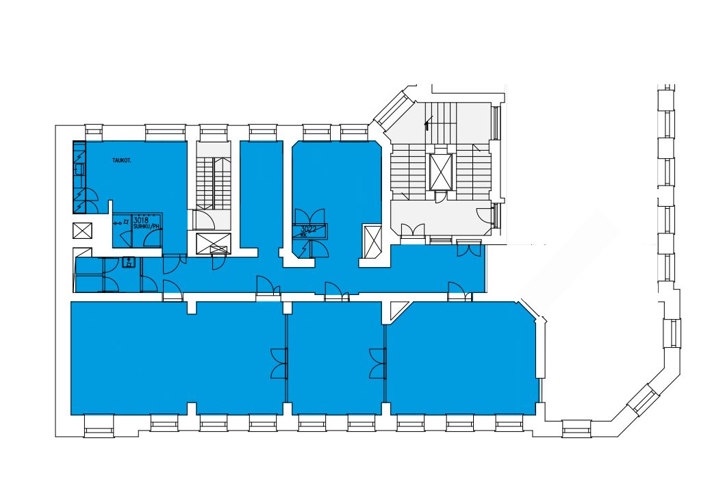
Vuokrataan toimistotila, jossa pari huonetta, avotilaa, keittiö, sekä oma suihku.
Korkeatasoinen modernisoitu arvorakennus, jossa on säilytetty huoneiden yli 3 metrinen korkeus ja upeat kaari-ikkunat. Rakennus on edustavassa kunnossa vasta valmistuneen julkisivuremontin jäljiltä.
Kohde sijaitsee loistavalla paikalla Kaartinkaupungissa, lyhyen kävelymatkan päässä rautatieasemalta. Kattavat ydinkeskustan palvelut lähistöllä.
Lisätiedot ja kohde-esittelyt 020 7290 710, lisää kohteita premises.fi.
Kohteella ei ole lain edellyttämää energiatodistusta tai energialuokka ei tiedossa.Kerros: 3
CRE PREMISES
Puh. Näytä puhelinnumero 020 7290 710
Vantaankoskentie 14
01670 VANTAA
