Vuokrataan toimistotilat - Espoo
Itsehallintokuja 4, Leppävaara, 02600 Espoo #10823954
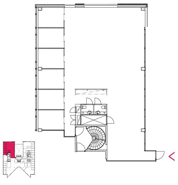
Vuokrataan valoisa ja moderni 2. kerroksen toimitila, johon mahtuu noin 12-16 työpistettä.
Polaris Business Park sijaitsee Espoon Leppävaarassa. Sen edustava arkkitehtuuri ja tyylikkäät tilaratkaisut tukevat yrityskuvan rakentamista.
Tehokkaan toiminnan takaavat uusin teknologia, käyttäjäystävälliset tilat ja monipuoliset palvelut. Polariksessa viihdytään ja menestytään. Talon palveluita ovat mm. auditorio, vuokrattavat neuvottelutilat, ravintola, aulapalvelu, saunatilat sekä kuntosali.
Myös lähialueen palvelutarjonta on runsas. Pohjoismaiden suurimpiin kuuluva Kauppakeskus Sello sijaitsee kävelymatkan päässä.
Lisätiedot ja kohde-esittelyt 020 7290 710, lisää kohteita premises.fi
Kohteella ei ole lain edellyttämää energiatodistusta tai energialuokka ei tiedossa.Kerros: 2
CRE PREMISES
Puh. Näytä puhelinnumero 020 7290 710
Vantaankoskentie 14
01670 VANTAA
