Vuokrataan toimistotilat - Helsinki
Annankatu 29, Kamppi, 00100 Helsinki #10823930
Toimistotilaa hyvällä paikalla Helsingin keskustassa.
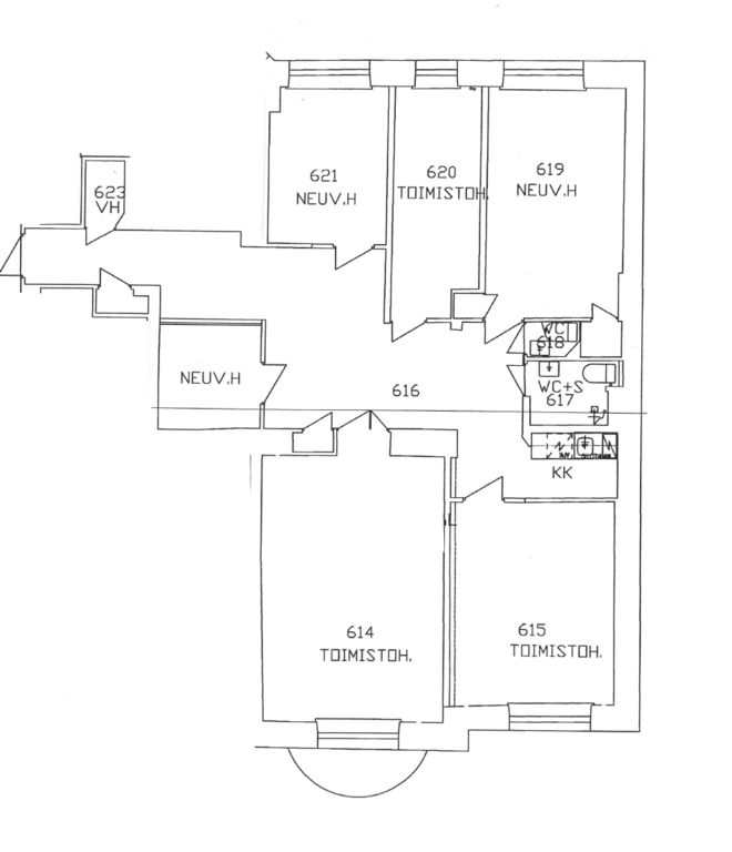
Tämä 136 m² toimistotila sijaitsee kiinteistön 6. kerroksessa. Toimisto on huoneellinen, ja siihen kuuluu oma keittiöpiste ja wc-tilat. Tila on arvonlisäveroton. Vapautuminen 31.12.2025.
Annankatu 29 sijaitsee aivan Helsingin keskustan ytimessä Kampissa. Kampin metro- ja linja-autoasemat sijaitsevat vieressä ja Rautatieasemalle on lyhyt kävelymatka.
Kysy lisää numerosta 044 723 4700 tai info@bref.fi. Palvelumme on tilanhakijoille ilmainen.
Osoite
Annankatu 29, 00100 Helsinki
Tilatyyppi
Toimistotilaa
136 m2
Palvelut
Kampin ja keskustan monipuoliset palvelut aivan kivenheiton päässä.
Vapautuu
Kysy
Kerros
6
Huoneiden lukumäärä
6
Energiatehokkuusluokka
Ei lain edellyttämää energiatodistusta
Ota yhteyttä
Bureau Real Estate Finland Oy
Lars Sonckin kaari 16, 02600 Espoo
Näytä puhelinnumero
0447234700
Bureau Real Estate Finland Oy
https://www.bref.fiPyydä lisätietoa
