Vuokrataan varastotilat - Helsinki
Mekaanikonkatu 5, Herttoniemi, 00880 Helsinki #10823917
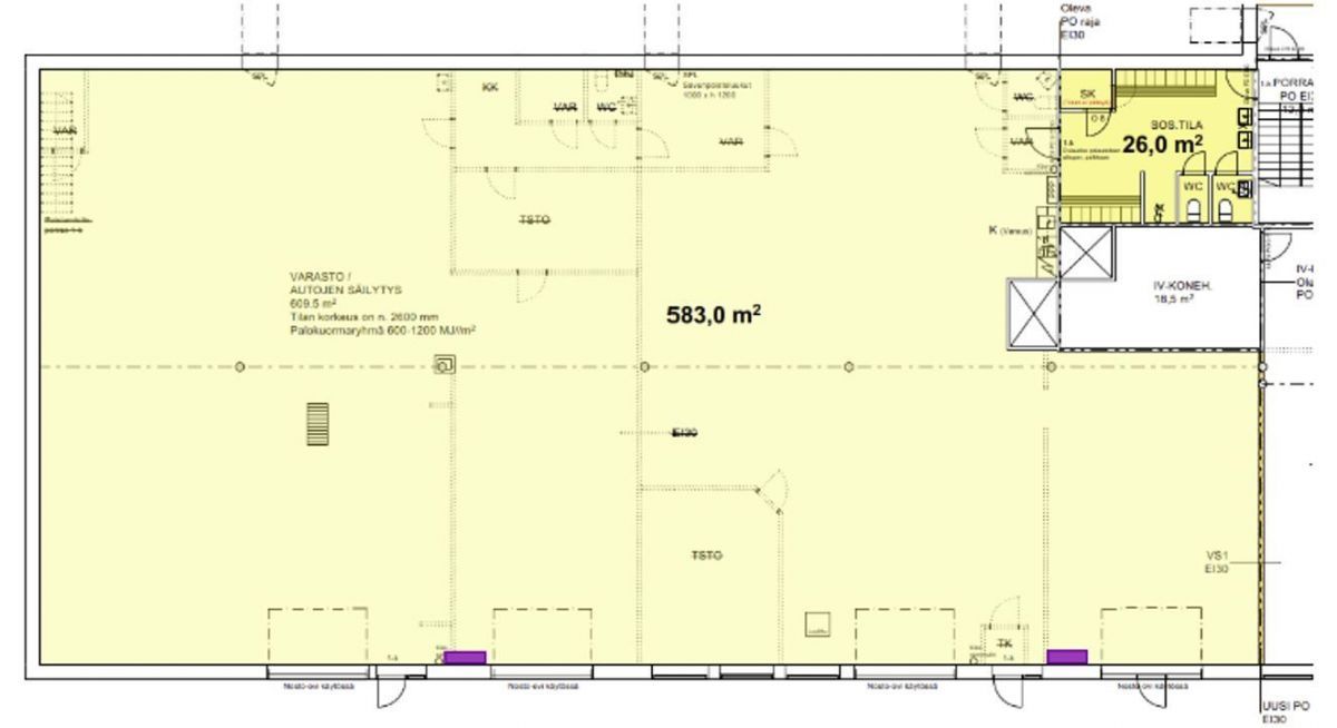
Vuokrataan juuri remontoitu siisti maantason varastotila. Tilassa neljä nosto-ovea, lattiakaivoja, omat pukuhuone- ja sosiaalitilat, sekä juuri uusittu led-valaistus. Tilan korkeus on 2,7 metriä. Tila sopii esimerkiksi varastointiin tai toimijoille, jotka eivät tarvitse nosturia, sekä liiketilaksi. Kohde sijaitsee Herttoniemen teollisuus- ja liikekeskittymän ytimessä.
Mekaanikonkatu 5 Herttoniemessä on monipuolinen logistiikkakiinteistö loistavalla sijainnilla, aivan Itäväylän tuntumassa. Erinomaisten liikenneyhteyksien ansiosta kiinteistöstä on helppo liikkua kaikkialle pääkaupunkiseudulla.
Lisätietoja soita 020 730 4530 tai info@repoint.fi. Palvelumme on tilanhakijalle ilmainen.
Repoint Toimitilat Oy
Itälahdenkatu 22 B, 00210 Helsinki
Näytä puhelinnumero
020 730 4530
Lisätietoja soita Näytä puhelinnumero 020 730 4530 tai info@repoint.fi
https://repoint.fi/