Vuokrataan tuotantotilat - Oulu
Moreenikuja 2, Rusko, 90630 Oulu #10823909
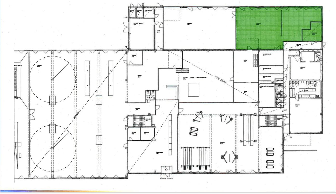
Vuokrattavana toimitilaa Oulun Ruskosta. Toimitila soveltuu hyvin tuotanto- ja varastokäyttöön .
Osoite
Moreenikuja 2, 90630 Oulu
Tilatyyppi
Tuotantotilaa
237 m2
Kiinteistö
Toimitilat Oulu
vuokrataan tuotanto/varastotila 237 m²
Vuokrattavana toimitilaa Oulun Ruskosta. Toimitila soveltuu hyvin tuotanto- ja varastokäyttöön .
Sijainti
Kohde sijaitsee kehittyvällä Ruskon teollisuusalueella hyvien liikenne yhteyksien varrella. Rusko on Oulun kaupunginosa noin kuusi kilometriä keskustasta pohjoiseen. Alue on varsin laaja, rajoittuen pohjoisessa Heikinharjun kaupunginosaan, idässä valtatiehen 20, etelässä Takalaanilaan ja lännessä Kuivasjärveen ja Pyykösjärveen. Alue on lähes täysin otettu kaupan- ja teollisuudenalan toiminnan käyttöön ja on elinvoimainen peruspienteollisuuden keskus.
vuokrataan tuotanto/varastotila 237 m²
Vuokrattavana toimitilaa Oulun Ruskosta. Toimitila soveltuu hyvin tuotanto- ja varastokäyttöön .
Sijainti
Kohde sijaitsee kehittyvällä Ruskon teollisuusalueella hyvien liikenne yhteyksien varrella. Rusko on Oulun kaupunginosa noin kuusi kilometriä keskustasta pohjoiseen. Alue on varsin laaja, rajoittuen pohjoisessa Heikinharjun kaupunginosaan, idässä valtatiehen 20, etelässä Takalaanilaan ja lännessä Kuivasjärveen ja Pyykösjärveen. Alue on lähes täysin otettu kaupan- ja teollisuudenalan toiminnan käyttöön ja on elinvoimainen peruspienteollisuuden keskus.
Vapautuu
Kysy
Rakennusvuosi
1986
Ota yhteyttä
Sagax Finland
Aleksanterinkatu
Näytä puhelinnumero
19 00100
HELSINKI
Näytä puhelinnumero
010 3200 320
Pyydä lisätietoa
