Vuokrataan tuotantotilat - Helsinki
Muonamiehentie 12, Konala, 00390 Helsinki #10823894
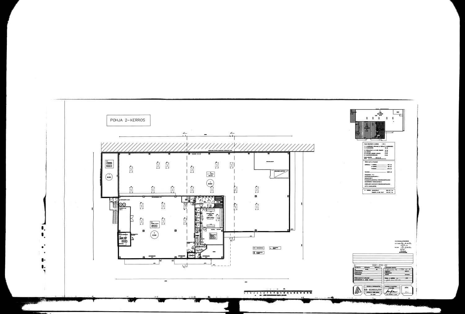
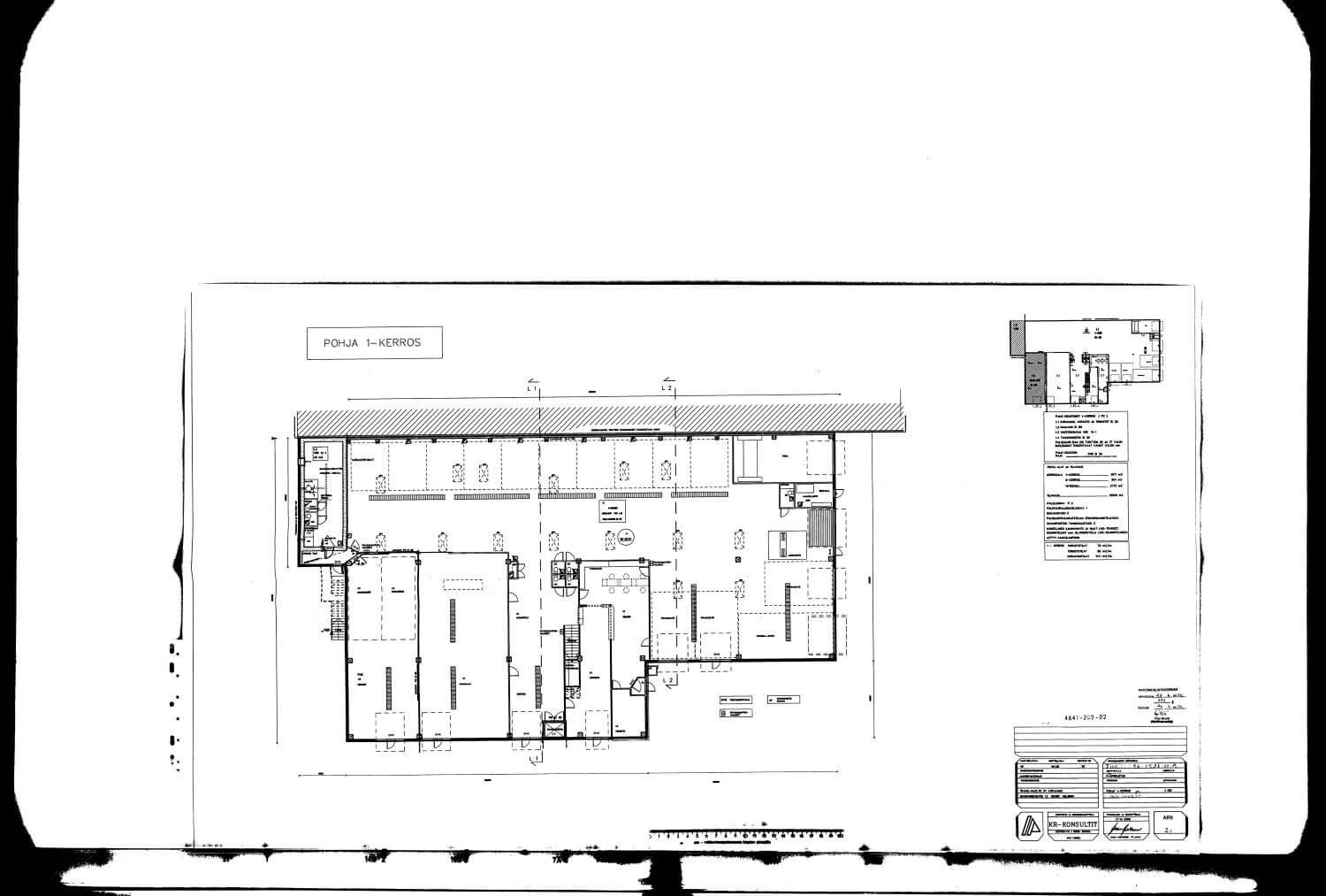
Vuokrattavana siistiä vuonna 2001 valmistunutta toimitilaa, joka on valmis autokorjaamokäyttöön. Tilassa löytyy kaksi nostinta, jarrudyno sekä öljylinja. Lisäksi tilassa on toimiva pesulinjasto.
Osoite
Muonamiehentie 12, 00390 Helsinki
Tilatyyppi
Tuotantotilaa
2100 m2
Kiinteistö
Toimitilat Helsinki
vuokrataan autohuoltotila 2100 m²
Vuokrattavana siistiä vuonna 2001 valmistunutta toimitilaa, joka on valmis autokorjaamokäyttöön. Tilassa löytyy kaksi nostinta, jarrudyno sekä öljylinja. Lisäksi tilassa on toimiva pesulinjasto. Toimitilaan sisältyy viihtyisät sosiaali- ja saunatilat.
vuokrataan autohuoltotila 2100 m²
Vuokrattavana siistiä vuonna 2001 valmistunutta toimitilaa, joka on valmis autokorjaamokäyttöön. Tilassa löytyy kaksi nostinta, jarrudyno sekä öljylinja. Lisäksi tilassa on toimiva pesulinjasto. Toimitilaan sisältyy viihtyisät sosiaali- ja saunatilat.
Palvelut
Lähialueen lounasravintolat, kauppakeskus Ristikko
Vapautuu
Kysy
Rakennusvuosi
2001
Ota yhteyttä
Sagax Finland
Aleksanterinkatu
Näytä puhelinnumero
19 00100
HELSINKI
Näytä puhelinnumero
010 3200 320
Pyydä lisätietoa
