Vuokrataan tuotantotilat - Pirkkala
Vesalantie 14, 33960 Pirkkala #10823883
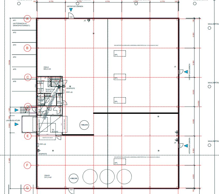
Vuokrataan hyvää, korkeaa hallitilaa. Toimitilassa on lastauslaituri ja nosto-ovi rekalle. Lattian kantavuus 1000 kg/m² ja korkeus kattoon reilu 10 m. Kohteella on hyvin parkkitilaa ja erinomaiset liikenneyhteydet.
Osoite
Vesalantie 14, 33960 Pirkkala
Tilatyyppi
Tuotantotilaa
998 m2
Kiinteistö
Toimitilat Pirkkala
vuokrataan varasto-/tuotantotila 1000 m²
Vuokrataan hyvää, korkeaa hallitilaa. Toimitilassa on lastauslaituri ja nosto-ovi rekalle. Lattian kantavuus 1000 kg/m² ja korkeus kattoon reilu 10 m. Kohteella on hyvin parkkitilaa ja erinomaiset liikenneyhteydet.
Toimitila on toiminut aiemmin elintarvikevarastona. Mahdollisuus muokata maanvarainen ovi.
Kohteen lähellä sijaitsee monipuolinen valikoima lounasravintoloita.
vuokrataan varasto-/tuotantotila 1000 m²
Vuokrataan hyvää, korkeaa hallitilaa. Toimitilassa on lastauslaituri ja nosto-ovi rekalle. Lattian kantavuus 1000 kg/m² ja korkeus kattoon reilu 10 m. Kohteella on hyvin parkkitilaa ja erinomaiset liikenneyhteydet.
Toimitila on toiminut aiemmin elintarvikevarastona. Mahdollisuus muokata maanvarainen ovi.
Kohteen lähellä sijaitsee monipuolinen valikoima lounasravintoloita.
Vapautuu
Kysy
Ota yhteyttä
Sagax Finland
Aleksanterinkatu
Näytä puhelinnumero
19 00100
HELSINKI
Näytä puhelinnumero
010 3200 320
Pyydä lisätietoa
