Vuokrataan toimistotilat - Jyväskylä
Salvesenintie 6, Jyskä, 40420 Jyväskylä #10823876
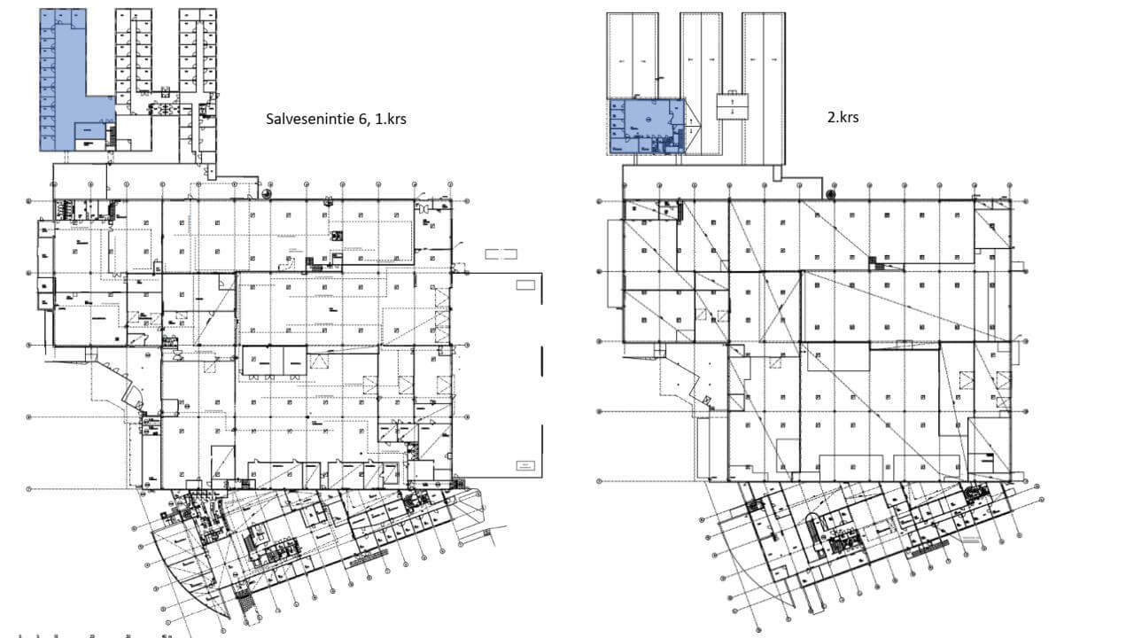
Ensimmäisen kerroksen toimistoa.
Osoite
Salvesenintie 6, 40420 Jyväskylä
Tilatyyppi
Toimistotilaa
1440 m2
Kiinteistö
Toimisto 1440 m², Jyväskylä
Heti vapaana toimistotilaa ensimmäisen kerroksen sivurakennuksesta. Toimitila voidaan pilkkoa pienemmiksi kokonaisuuksiksi.
Heti vapaana toimistotilaa ensimmäisen kerroksen sivurakennuksesta. Toimitila voidaan pilkkoa pienemmiksi kokonaisuuksiksi.
Vapautuu
Kysy
Ota yhteyttä
Sagax Finland
Aleksanterinkatu
Näytä puhelinnumero
19 00100
HELSINKI
Näytä puhelinnumero
010 3200 320
Pyydä lisätietoa
