Vuokrataan toimistotilat - Jyväskylä
Onkapannu 3, Savela, 40700 Jyväskylä #10823864
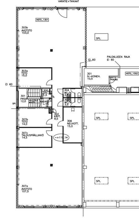
3. kerroksen toimisto
Osoite
Onkapannu 3, 40700 Jyväskylä
Tilatyyppi
Toimistotilaa
300 m2
Kiinteistö
Toimitilat Jyväskylä
vuokrataan toimisto 300 m²
Kiinteistön 3. kerroksessa sijaitseva toimisto. Toimitilan yhteiskäytössä toisen vuokralaisen kanssa ovat keittiö, taukotila ja wc-tilat.
Kohteen edustalta on mahdollisuus vuokrata autopaikkoja. puolella on päivittäistavarakauppa
sekä huoltoasema.
Kiinteistöön tulee valokaapeli ja sisäverkko on
CAT5-kaapeloitu.
vuokrataan toimisto 300 m²
Kiinteistön 3. kerroksessa sijaitseva toimisto. Toimitilan yhteiskäytössä toisen vuokralaisen kanssa ovat keittiö, taukotila ja wc-tilat.
Kohteen edustalta on mahdollisuus vuokrata autopaikkoja. puolella on päivittäistavarakauppa
sekä huoltoasema.
Kiinteistöön tulee valokaapeli ja sisäverkko on
CAT5-kaapeloitu.
Palvelut
Savelan alueen lounasravintolat
Vapautuu
Kysy
Rakennusvuosi
1978
Ota yhteyttä
Sagax Finland
Aleksanterinkatu
Näytä puhelinnumero
19 00100
HELSINKI
Näytä puhelinnumero
010 3200 320
Pyydä lisätietoa
