Vuokrataan toimistotilat - Espoo
Mänkimiehentie 4, Kauklahti, 02780 Espoo #10823859
Huippusiisti ja nykyaikainen toimisto.
Osoite
Mänkimiehentie 4, 02780 Espoo
Tilatyyppi
Toimistotilaa
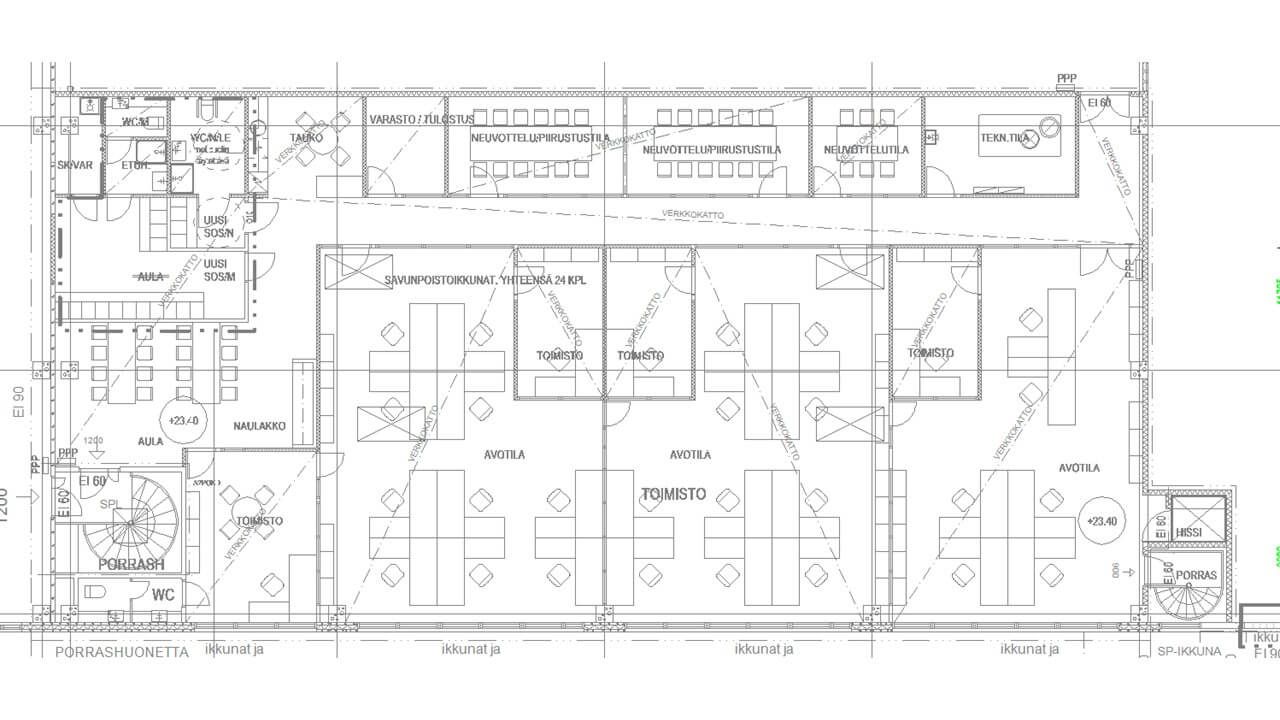
432 m2
Kiinteistö
Toimitilat Espoo
vuokrataan toimisto 432 m²
Huippusiistiä ja nykyaikaista toimistoa Kauklahdessa logistiikka-/varastorakennuksen toisessa kerroksessa. Toimitilat on tehty noin kaksi vuotta sitten.
Toimisto voidaan jakaa esimerkisi kolmelle noin 100 m² käyttäjälle, jolloin sosiaalitilat ja keittiö olisivat yhteiskäytössä.
vuokrataan toimisto 432 m²
Huippusiistiä ja nykyaikaista toimistoa Kauklahdessa logistiikka-/varastorakennuksen toisessa kerroksessa. Toimitilat on tehty noin kaksi vuotta sitten.
Toimisto voidaan jakaa esimerkisi kolmelle noin 100 m² käyttäjälle, jolloin sosiaalitilat ja keittiö olisivat yhteiskäytössä.
Vapautuu
Kysy
Rakennusvuosi
1980
Ota yhteyttä
Sagax Finland
Aleksanterinkatu
Näytä puhelinnumero
19 00100
HELSINKI
Näytä puhelinnumero
010 3200 320
Pyydä lisätietoa
