Vuokrataan toimistotilat - Helsinki
Pulttitie 20, Roihupelto, 00880 Helsinki #10823797
Siisti, remontoitu 12 m² toimisto / työtila Roihupellon teollisuusalueella
Osoite
Pulttitie 20, 00880 Helsinki
Tilatyyppi
Toimistotilaa
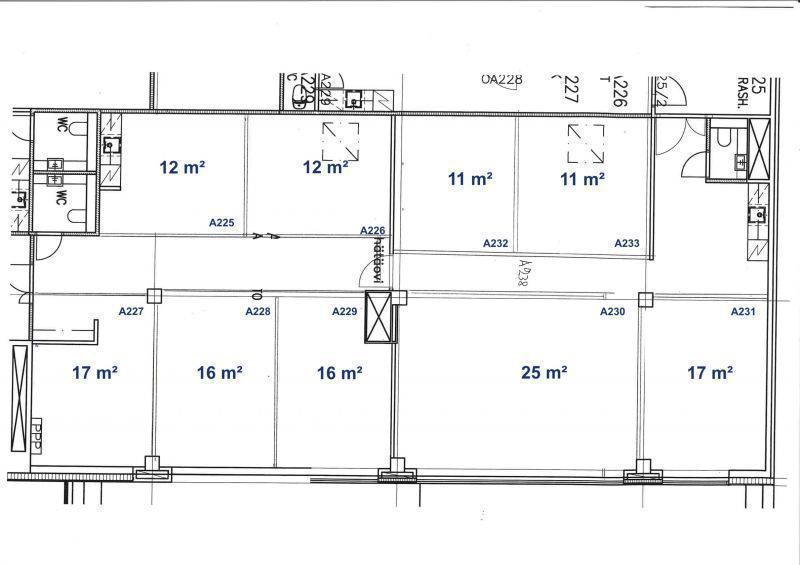
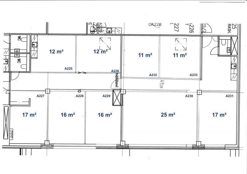
12 m2
Pohjapiirros
Vuokra
240 € / kk + alv
Kiinteistö
Juuri remontoitu toimistotila yhdelle tai kahdelle henkilölle.
Toimisto on toisessa kerroksessa, mutta tilaan pääsee sekä tavarahissillä, että porrashuoneesta. Tilan läheisyydestä löytyy yhteiskäytössä oleva keittiö ja WC.
Roihupellossa Itäkeskuksen ja Herttoniemen välissä sijaitseva toimisto- ja teollisuusrakennus antaa oman rauhan tai tilaisuuden yhdessä tekemiselle ilman ylimääräisiä häiriöitä.
Tässä kerroksessa on yhteiskäyttöiset keittiötilat sekä wc.t.
Musiikin soittaminen kielletty, tila ei siis sovi musiikin tuottajille / musiikkistudioksi.
Kiinteistöstä löytyy myös yhteisiä tiloja kuten keittiö, wc-tilat, pyörille tarkoitettu säilytyshuone, jätehuone sekä suihkutilat pukuhuoneineen.
Sijainti on noin 20 min keskustasta, mutta siitä huolimatta nopeiden yhteyksien ääressä. Siilitien metroasemalle kävelee noin 10 minuutissa, bussit kulkevat säännöllisesti sekä Raidejokeri helpottaa kulkemista. Autollakin liikkuminen onnistuu vaivattomasti. Auton saa parkkiin kadun varrelle sekä kiinteistöltä on mahdollista vuokrata parkkipaikkaa kuukausiveloituksella.
Kiinteistöä ympäröivä palvelutarjonta kehittyy jatkuvasti. Lähistöltä löytyy myös useita ravintolavaihtoehtoja, Lidl sekä useita rakennusliikkeitä kuten K-Rauta ja Motonet.
Toimisto on toisessa kerroksessa, mutta tilaan pääsee sekä tavarahissillä, että porrashuoneesta. Tilan läheisyydestä löytyy yhteiskäytössä oleva keittiö ja WC.
Roihupellossa Itäkeskuksen ja Herttoniemen välissä sijaitseva toimisto- ja teollisuusrakennus antaa oman rauhan tai tilaisuuden yhdessä tekemiselle ilman ylimääräisiä häiriöitä.
Tässä kerroksessa on yhteiskäyttöiset keittiötilat sekä wc.t.
Musiikin soittaminen kielletty, tila ei siis sovi musiikin tuottajille / musiikkistudioksi.
Kiinteistöstä löytyy myös yhteisiä tiloja kuten keittiö, wc-tilat, pyörille tarkoitettu säilytyshuone, jätehuone sekä suihkutilat pukuhuoneineen.
Sijainti on noin 20 min keskustasta, mutta siitä huolimatta nopeiden yhteyksien ääressä. Siilitien metroasemalle kävelee noin 10 minuutissa, bussit kulkevat säännöllisesti sekä Raidejokeri helpottaa kulkemista. Autollakin liikkuminen onnistuu vaivattomasti. Auton saa parkkiin kadun varrelle sekä kiinteistöltä on mahdollista vuokrata parkkipaikkaa kuukausiveloituksella.
Kiinteistöä ympäröivä palvelutarjonta kehittyy jatkuvasti. Lähistöltä löytyy myös useita ravintolavaihtoehtoja, Lidl sekä useita rakennusliikkeitä kuten K-Rauta ja Motonet.
Vapautuu
Heti
Kerros
2 / 3
Energiatehokkuusluokka
Ei lain edellyttämää energiatodistusta
Hissi
Ota yhteyttä
ScanReal Oy LKV
Opus Business Park
Hitsaajankatu 24
00810 Helsinki
info@scanreal.fi
Puh:
Näytä puhelinnumero
020 730 8830
Sopivat toimitilat yhdellä otolla!
Kartoitamme toimitilatarpeesi ja etsimme yrityksellesi parhaiten sopivat vapaat toimitilat. Koska vuokranantajat maksavat palvelumme, on tämä yrityksellesi veloituksetonta.
OTA YHTEYTTÄ - SOVI NÄYTTÖ!
Kaikki kohteemme eivät ole netissä, kerro tilatarpeesi niin kartoitamme vaihtoehdot.
Palvelumme on tilanhakijalle ilmainen
Pyydä lisätietoa
