Vuokrataan liiketilat - Jyväskylä
Kauppakeskus Sokkari, Kauppakatu 24, 40100 Jyväskylä #10823793
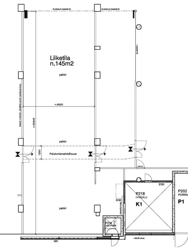
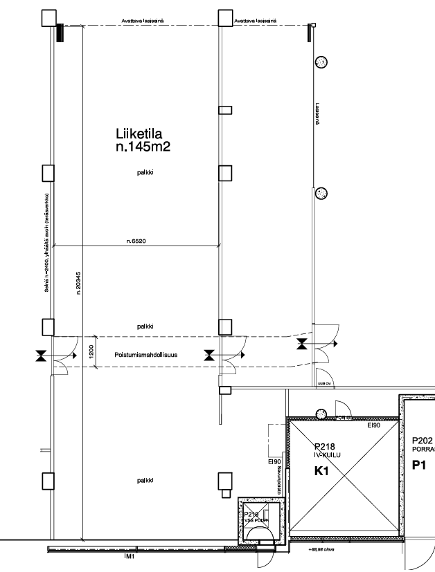
Vuokrataan n. 145m2 liiketila erittäin näkyvältä paikalta, Jyväskylän keskustan vilkkaimmasta kauppakeskuksesta. Asemakadun puolelta katutason tilassa, -1. kerroksessa oleva liiketila sijaitsee vilkkaan kauppakäytävän varrella, vastapäätä Mestarin Herkun ruokakauppaa ja Flying Tigerin myymälän vieressä. Kauppakeskuksessa on runsaat asiakasvirrat ja vuokrattava tila soveltuukin erinomaisesti esimerkiksi myymäläkäyttöön. Avaran pohjaratkaisun ansiosta tilaa on mahdollista muokata toimijan konseptiin sopivaksi. Ota yhteyttä esittelyä ja lisätietoja varten!
Katutasossa
Näkyvällä paikalla
Hissi
Aveon Real Estate Oy
Kauppakatu 18 C 26, 40100 Jyväskylä
Miska Puustinen
Puh.
Näytä puhelinnumero
045 354 6836
miska.puustinen@aveon.fi
Olemme kiinteistöliiketoiminnan asiantuntija, joka toimii yrittäjämäisesti neuvonantajana kiinteistökaupoissa, toimitilavälittämisessä sekä kiinteistökehityksessä.
Asiakkaitamme ovat kotimaiset ja ulkomaiset kiinteistönomistajat, -sijoittajat sekä tilojen käyttäjät kaikkialla Suomessa.
