Vuokrataan toimistotilat - Oulu
Kirkkokatu 12, 90100 Oulu #10823752
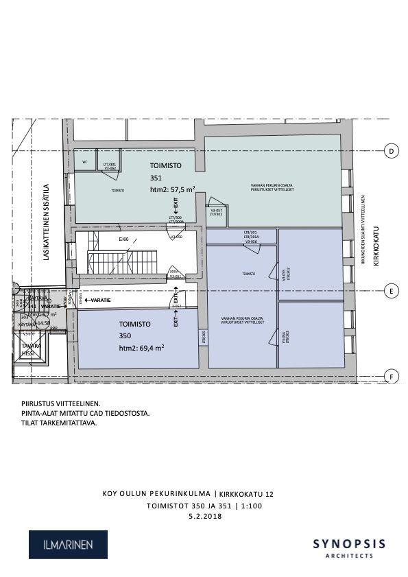
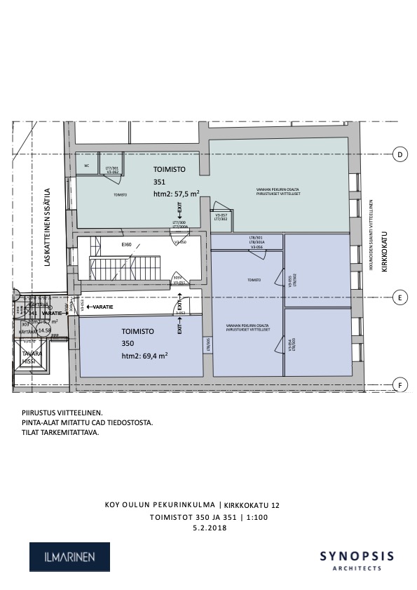
Toimitilaa erinomaisella sijainnilla Pekurinkulmassa aivan Oulun ydinkeskustassa keskeisellä paikalla kävelykatu Rotuaarin varrella. Tilamalli avotoimisto. Vapaa vuokrattava tila on pohjapiirroksessa näkyvä tila nro 350.
Osoite
Kirkkokatu 12, 90100 Oulu
Tilatyyppi
Toimistotilaa
69,5 m2
Pohjapiirros
Vapautuu
Kysy
Rakennusvuosi
1910
Kerros
3
Liitetiedostot
Ota yhteyttä
Ilmarinen
Ilmarinen, 00018 Ilmarinen
Näytä puhelinnumero
010 28 400
Pyydä lisätietoa
