Vuokrataan toimistotilat - Helsinki
Mikonkatu 9, Keskusta, 00100 Helsinki #10823751
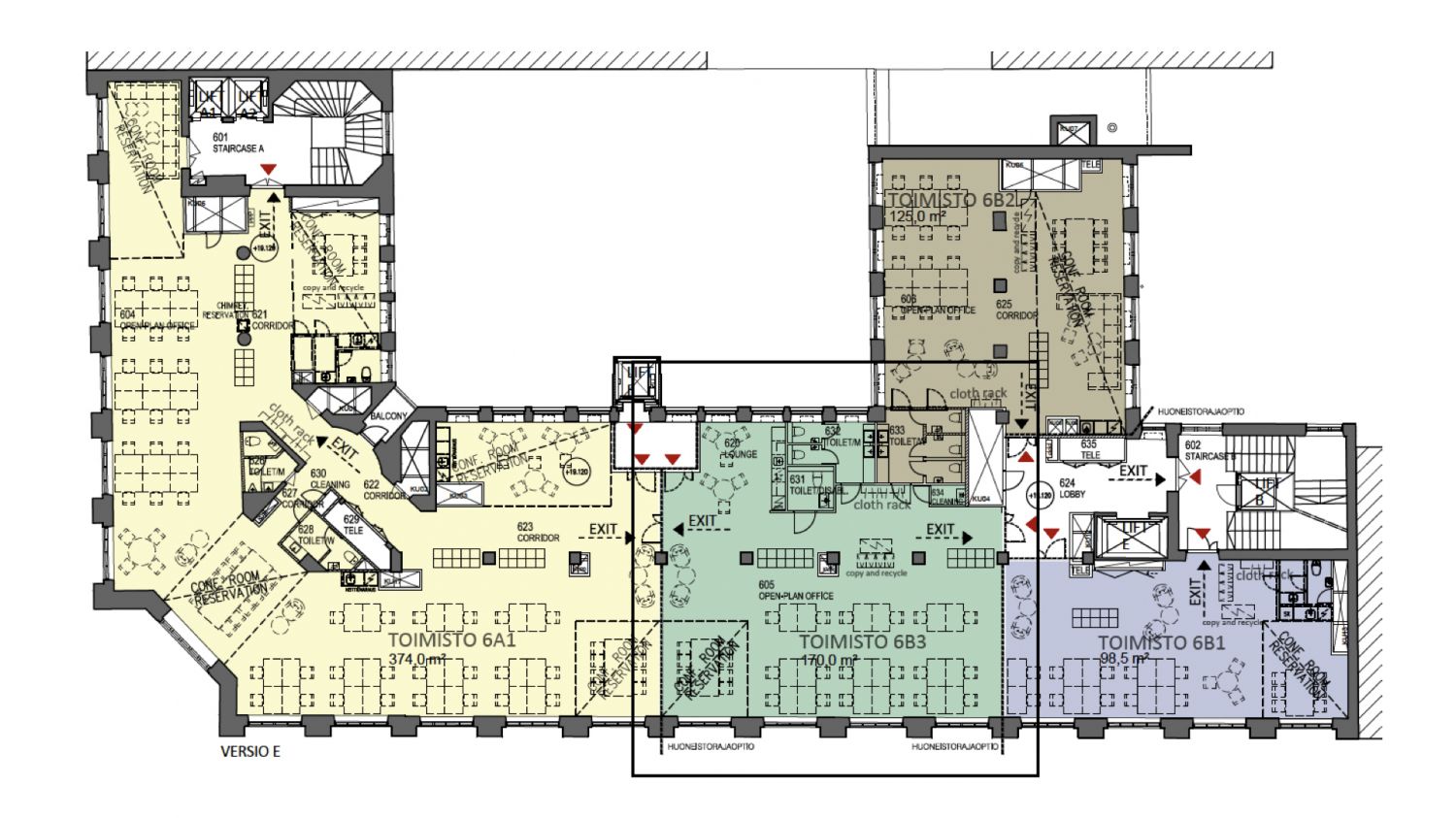
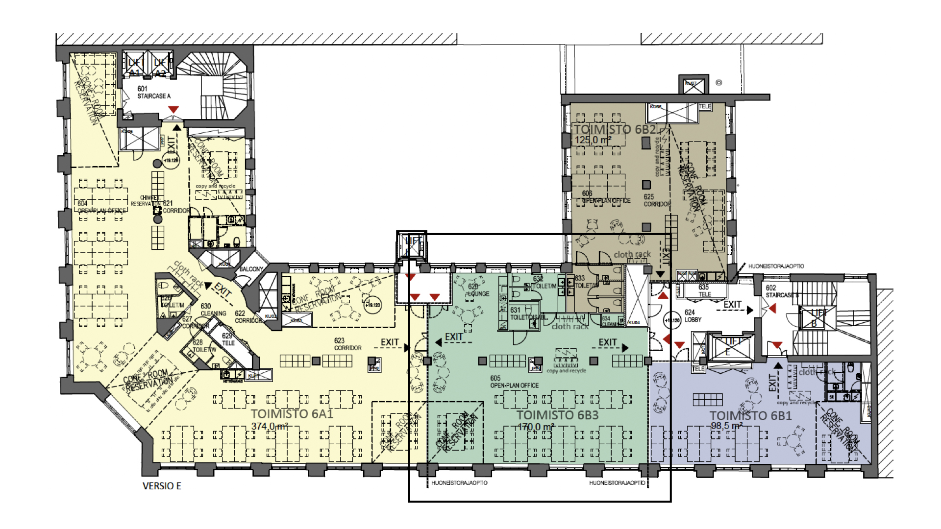
Vuokrataan remontoitu 170 m2 yksityistoimisto Helsingin paraatipaikalta. Valoisaa avotilaa, erillinen neuvotteluhuone ja valoisa avokeittiönurkkaus. Oma sisäänkäynti tai kulku Epicenterin yhteistilojen ja vastaanoton kautta. Kalustettuna tai vuokralaisen kalustettavissa.
Osoite
Mikonkatu 9, 00100 Helsinki
Tilatyyppi
Toimistotilaa
170 m2
Pohjapiirros
Vapautuu
Kysy
Rakennusvuosi
1929
Saneerausvuosi
2018
Kerros
6
Liitetiedostot
Ota yhteyttä
Ilmarinen
Ilmarinen, 00018 Ilmarinen
Näytä puhelinnumero
010 28 400
Pyydä lisätietoa
