Vuokrataan varastotilat, työtilat - Helsinki
Pälkäneentie 13, Vallila, Vallila, 00510 Helsinki #10823719
Osoite
Pälkäneentie 13, Vallila, 00510 Helsinki
Tilatyyppi
Varastotilaa
125 m2
Työtilaa
125 m2
Yhteensä
125 m2
Kiinteistö
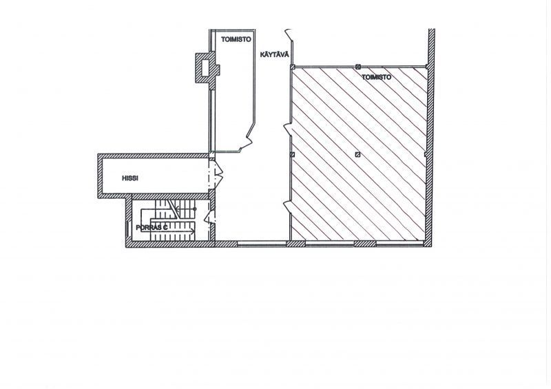
Vuokrataan entisestä Helsingin Teräshuonekalutehdas Oy:n kiinteistöstä 3. kerroksen 125 m²:n varasto/työtilaa. Tila lähes neliön mallinen (11,97 m x 10,43 m). Tilaan käyntiovi sekä nosto-ovi. Kahdella seinällä voimavirtapistokkeet.
Tilaa vastapäätä tavarahissi (5000 kg).
Huonekorkeus 3,14 metriä.
Vuokralaisten yhteiskäytössä sosiaalitilat.
Tila vapautuu vuokrattavaksi 31.5.2025.
Vuokrapyyntö 13 euroa/m²+alv.
Tilaa vastapäätä tavarahissi (5000 kg).
Huonekorkeus 3,14 metriä.
Vuokralaisten yhteiskäytössä sosiaalitilat.
Tila vapautuu vuokrattavaksi 31.5.2025.
Vuokrapyyntö 13 euroa/m²+alv.
Vuokralaisia
Kiinteistössä toimii useita luovanalan yrittäjiä.
Vapautuu
Heti
Energiatehokkuusluokka
Ei lain edellyttämää energiatodistusta
Ota yhteyttä
Comreal Oy LKV
Tuula Leikas
Näytä puhelinnumero
040 531 3722
P.
Näytä puhelinnumero
020 744 1000
Läkkisepänkuja 6, 00620 Helsinki
Comreal Oy on kasvava ja osaava kiinteistöalan palveluntuottaja kiinteistöjen omistajille ja käyttäjille.
Kiinteistö on sijoittajalle hyvä sijoitus vain, jos siellä on tyytyväiset asiakkaat, eli vuokralaiset. Siksi laadukas asiakaspalvelu on toiminnan lähtökohta.
Pyydä lisätietoa
