Vuokrataan toimistotilat - Helsinki
Vanhanlinnantie 3, Itäkeskus, 00900 Helsinki #10823473
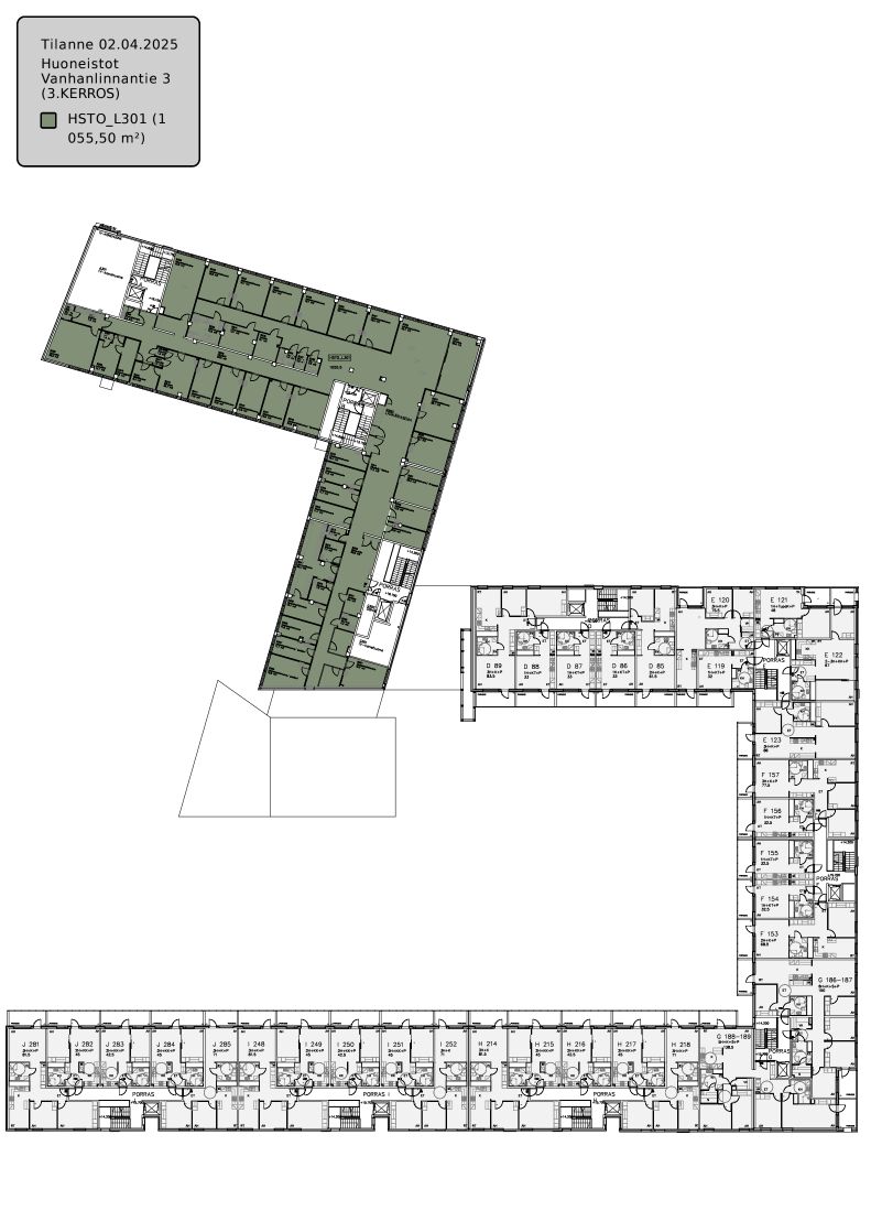
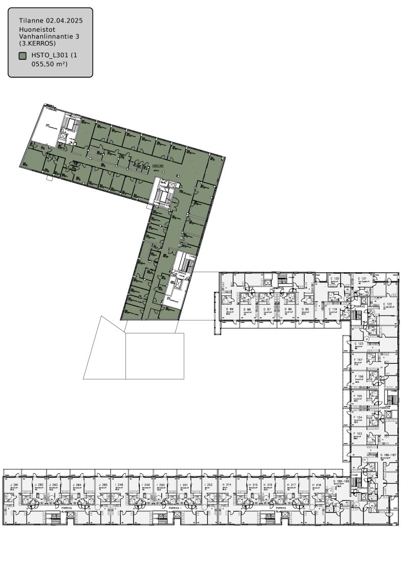
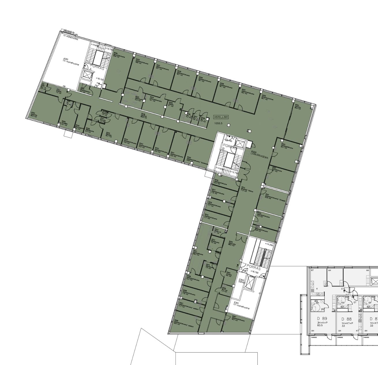
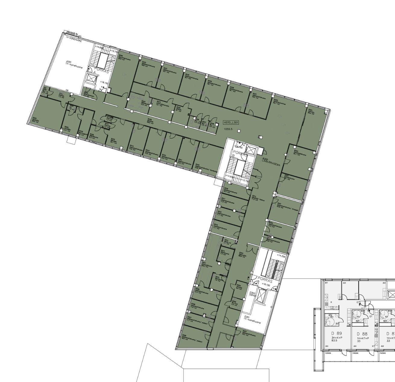
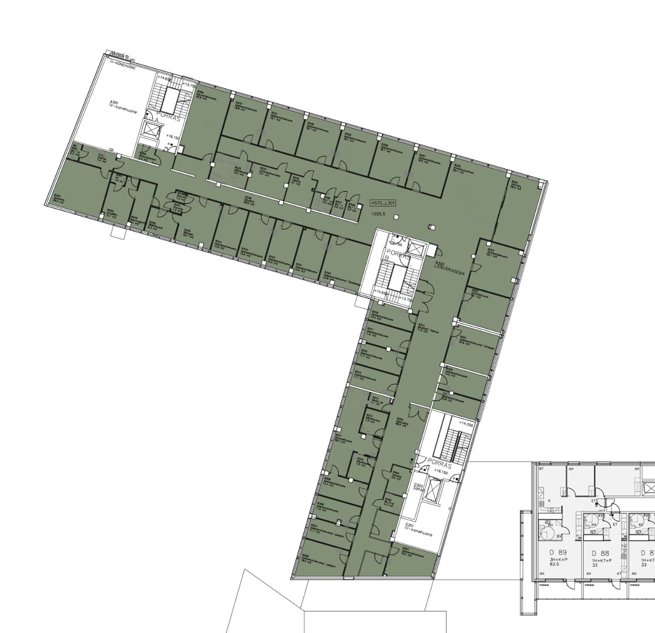
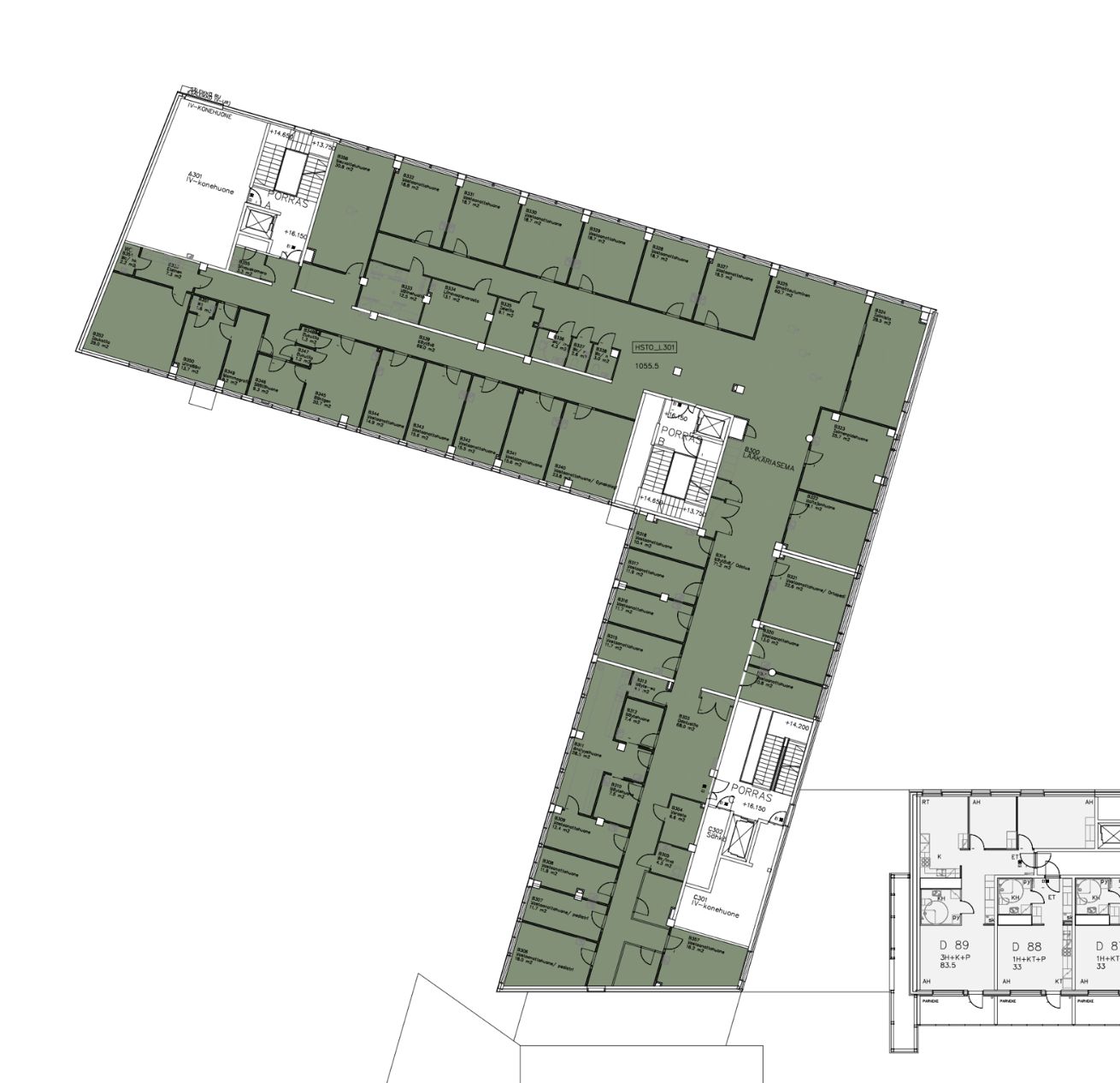
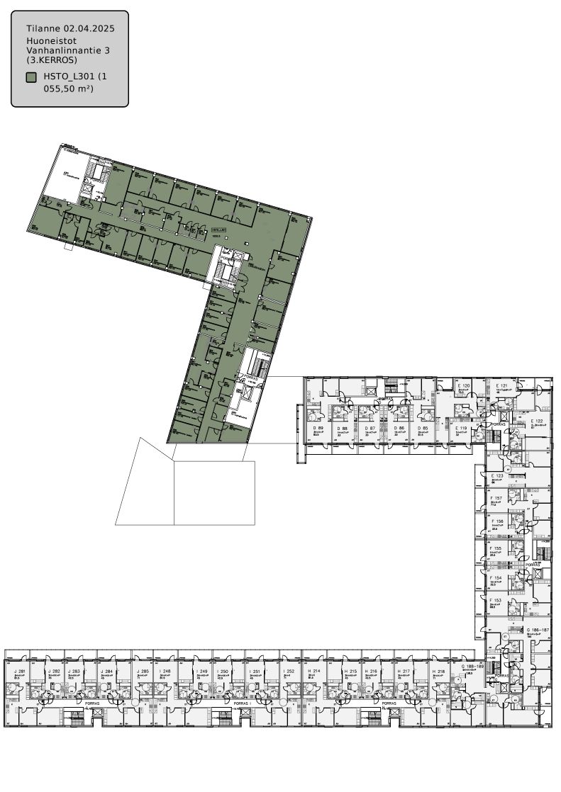
Vuokrattavana toimistotilaa 3.kerroksesta.
Vanhanlinnantie 3 on asuinkiinteistö, jonka kivijalassa on vuokrattavaa liiketilaa. Se sijaitsee erinomaisella paikalla Itäkeskuksessa. Kauppakeskus Itis kattavine palveluineen on aivan naapurissa ja Puotilan metroasemalle on matkaa noin 200 metriä.
Lisätiedot kohteesta, sekä kohde-esittelyt saat numerosta: 020 7290 710. Lisää kohteita osoitteesta: www.premises.fi.
Kohteella ei ole lain edellyttämää energiatodistusta tai energialuokka ei tiedossa.Kerros: 3
Osoite
Vanhanlinnantie 3, 00900 Helsinki
Tilatyyppi
Toimistotilaa
1055,5 m2
Ota yhteyttä
CRE PREMISES
Puh. Näytä puhelinnumero 020 7290 710
Vantaankoskentie 14
01670 VANTAA
Pyydä lisätietoa
