Vuokrataan toimistotilat - Helsinki
Kuortaneenkatu 7, Vallila, 00520 Helsinki #10823413
Toimistotilaa Vallilassa, hyvien liikenneyhteyksien varrella.
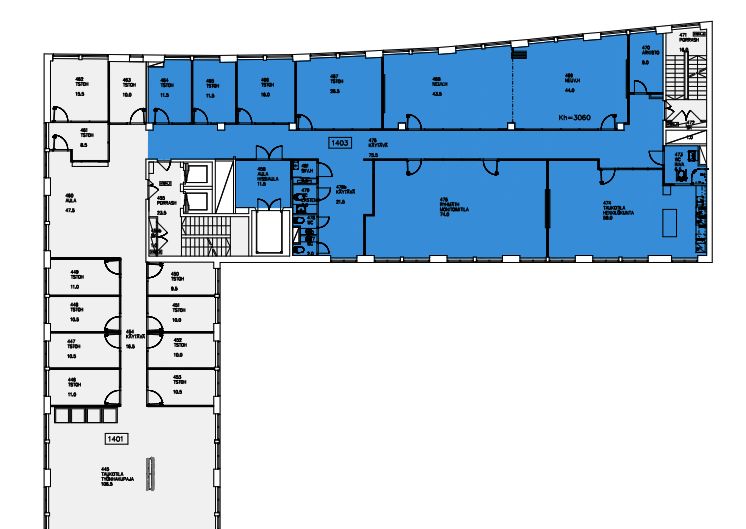
Tämä 429 m² toimistotila sijaitsee kiinteistön 4. kerroksessa. Tilassa on ollut terapiatoimintaa, löytyy toimistoa ja isoja toiminnallisia tiloja.
Kuortaneenkatu 7 on hyväkuntoinen, industrial-henkinen kiinteistö, joka sijaitsee Vallilassa, kävelymatkan päässä Pasilan juna-asemalta. Tilat ovat tarvittaessa muokattavissa vuokralaisen tarpeiden mukaan. Kiinteistössä on lounasravintola ja autopaikkoja on saatavilla lähellä sijaitsevasta pysäköintihallista.
Kysy lisää numerosta 044 723 4700 tai info@bref.fi. Palvelumme on tilanhakijoille ilmainen.
Hissi
Bureau Real Estate Finland Oy
Lars Sonckin kaari 16, 02600 Espoo
Näytä puhelinnumero
0447234700
Bureau Real Estate Finland Oy
https://www.bref.fi