Vuokrataan toimistotilat, varastotilat - Helsinki
Kuninkaantammenkierto 3, Kuninkaantammi, 00430 Helsinki #10823341
Monikäyttöinen 5384 m² varasto- ja toimistotila Helsingin Kuninkaantammessa
Osoite
Kuninkaantammenkierto 3, 00430 Helsinki
Tilatyyppi
Toimistotilaa
484,5 m2
Varastotilaa
4899,5 m2
Yhteensä
5384 m2
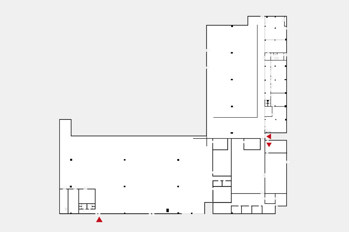
Pohjapiirros
Kiinteistö
Vuokrattavana suuri tilakokonaisuus, joka koostuuu 4899,5 m² varastotilasta sekä tilavasta 484,5 m² toimistosta työhuoneineen.
Helsingin Kuninkaantammi tarjoaa avaraa ja muunneltavaa toimitilaa kahdessa kerroksessa.
Kuninkaantammen alueella on kattavat lähipalvelut ja Kauppakeskus Myyrmannin sekä Kaaren monipuoliset palvelut ovat lyhyen ajomatkan päässä.
Kuninkaantammen kiinteistöön, Hämeenlinnanväylän varrella, on hyvät julkiset liikenneyhteydet ja kiinteistön piha-alueelta löytyy runsaasti pysäköintipaikkoja.
Helsingin Kuninkaantammi tarjoaa avaraa ja muunneltavaa toimitilaa kahdessa kerroksessa.
Kuninkaantammen alueella on kattavat lähipalvelut ja Kauppakeskus Myyrmannin sekä Kaaren monipuoliset palvelut ovat lyhyen ajomatkan päässä.
Kuninkaantammen kiinteistöön, Hämeenlinnanväylän varrella, on hyvät julkiset liikenneyhteydet ja kiinteistön piha-alueelta löytyy runsaasti pysäköintipaikkoja.
Vapautuu
Heti
Kerros
1
Energiatehokkuusluokka
D2018
Ota yhteyttä
ScanReal Oy LKV
Opus Business Park
Hitsaajankatu 24
00810 Helsinki
info@scanreal.fi
Puh:
Näytä puhelinnumero
020 730 8830
Sopivat toimitilat yhdellä otolla!
Kartoitamme toimitilatarpeesi ja etsimme yrityksellesi parhaiten sopivat vapaat toimitilat. Koska vuokranantajat maksavat palvelumme, on tämä yrityksellesi veloituksetonta.
OTA YHTEYTTÄ - SOVI NÄYTTÖ!
Kaikki kohteemme eivät ole netissä, kerro tilatarpeesi niin kartoitamme vaihtoehdot.
Palvelumme on tilanhakijalle ilmainen
Pyydä lisätietoa
