Vuokrataan toimistotilat - Helsinki
Kumpulantie 7, Vallila, 00520 Helsinki #10823242
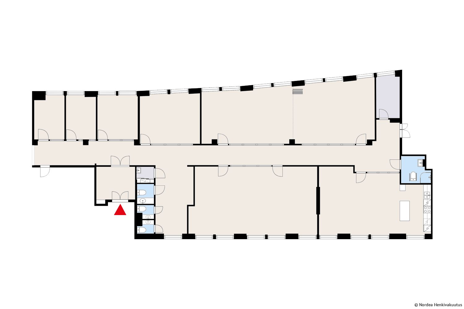
Vuokrataan 4. kerroksen aikaisemmin terapiatoimminnassa ollut valoisa toimisto. Tilassa useita työ-/neuvotteluhuoneita sekä wc- tilat. Kiinteistö sijaitsee keskeisellä paikalla Vallilassa, jossa on runsaasti laadukkaita lounasravintoloita. Julkiset liikenneyhteydet ovat erinomaiset: raitiovaunupysäkki sijaitsee aivan talon vieressä ja Pasilan asemalle on viiden minuutin kävelymatka. Paikalle pääsee kätevästi myös omalla autolla tai pyörällä.
Nordea Henkivakuutus Suomi Oy:n omistamissa kiinteistössä käytetään vihreää kiinteistösähköä.
Nordea Henkivakuutus Suomi Oy
Aleksis Kiven katu 9, Helsinki 00020 NORDEA
Soili Nevalainen
Näytä puhelinnumero
050 364 0586
Nordea Henkivakuutus Suomi Oy vuokraa toimitiloja omistamistaan ja hallinnoimistaan sijoituskiinteistöistä pääkaupunkiseudulla. Toimitilavuokrauksessa Nordea Henkivakuutuksen yhteistyökumppani on Newsec Asset Management.
http://nordeahenkivakuutustoimitilat.fi